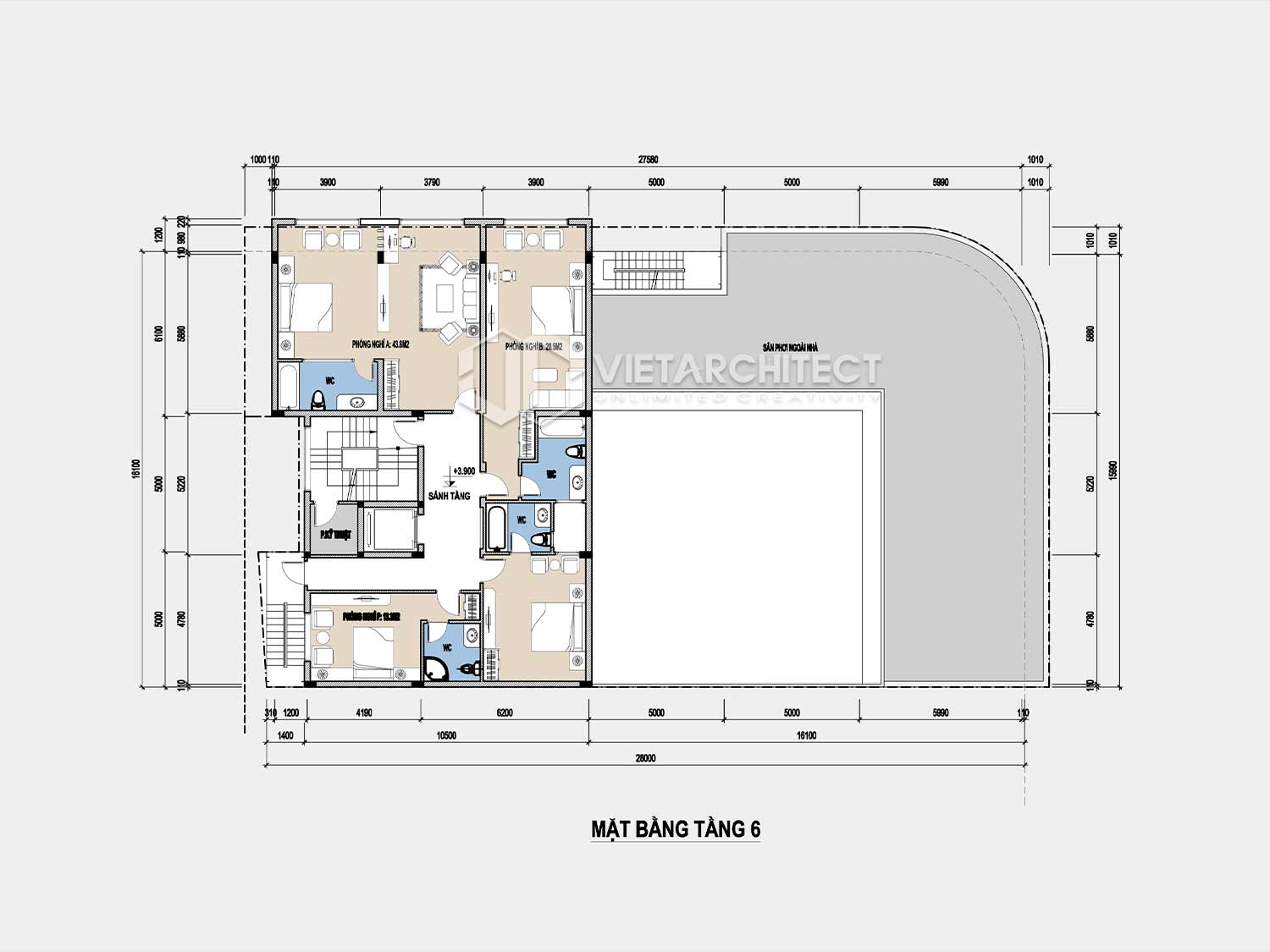
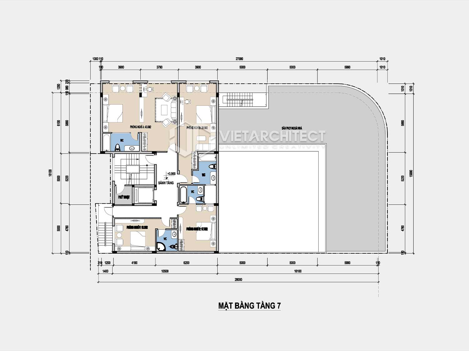
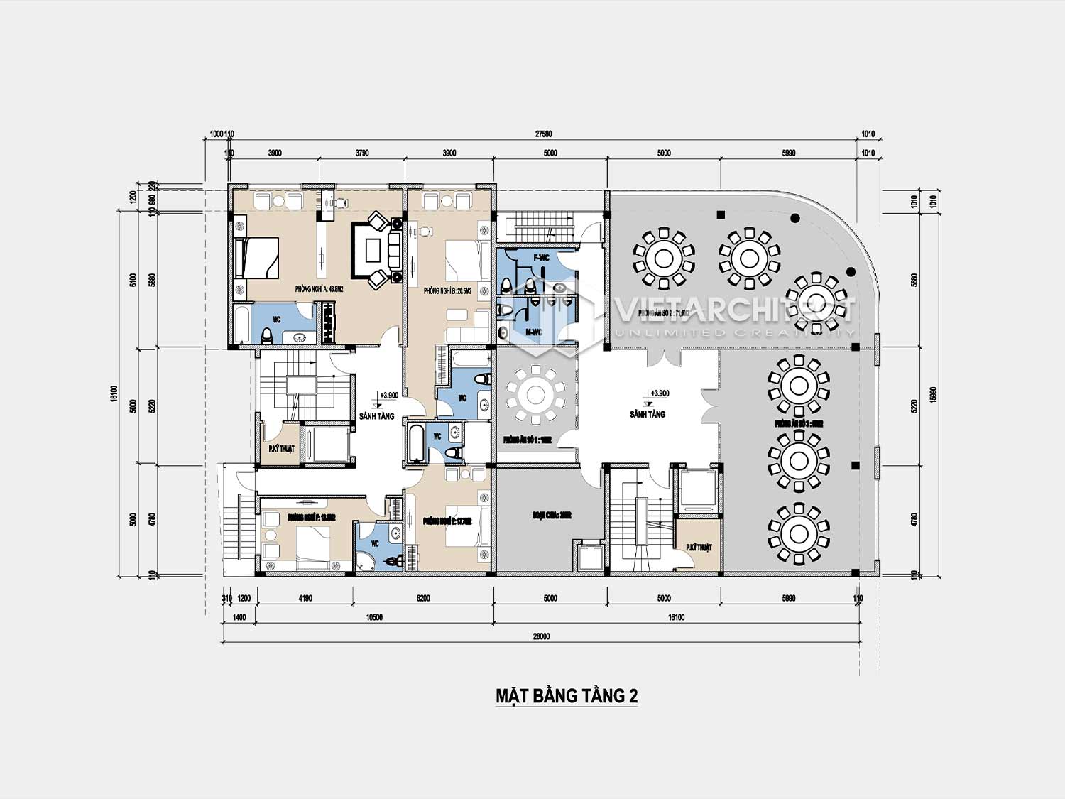
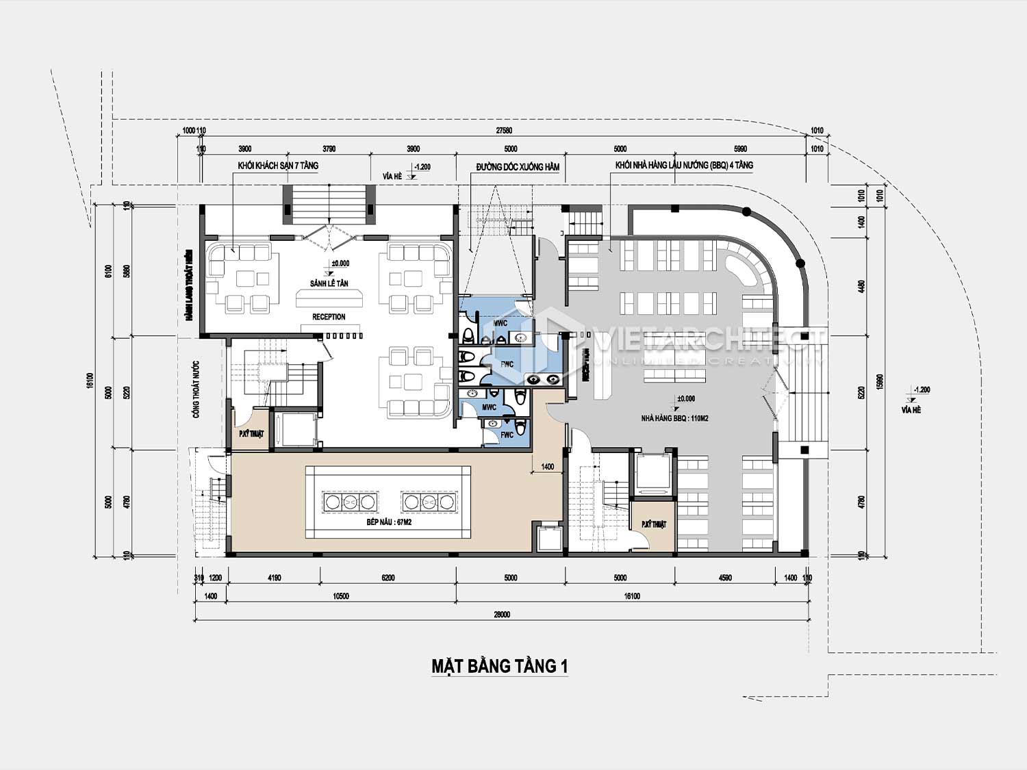
KHÁCH SẠN LÀO CAI GLAMOUR

Thông tin dự án

  • Chủ đầu tư: Ông Phùng Đình Dũng
  • Địa chỉ: Lô 01-CL3, đường An Dương Vương, phường Cốc Lếu, thành phố Lào Cai, tỉnh Lào Cai
  • Diện tích: 445m2
  • Số tầng: 8 tầng
  • Chi phí xây dựng: 26 tỷ đồng

Mô tả sản phẩm


Mọi thắc mắc về thiết kế, thi công công trình và nhận báo giá trực tiếp các bạn có thể liên hệ trực tiếp với chúng tôi. 

  • WebsiteVietarchitect.vn
  • FacebookKiến trúc VietArch
  • Gmail: Vietarch.company@gmail.com
  • Hotline: 0931900379
  • Địa chỉ: Số 41+43, ngõ 119, phố Hồ Đắc Di, Đống Đa, Hà Nội.

Sản phẩm liên quan

Thong ke
093 1900 379