Dự án thiết kế khách sạn bình dân tại Lào Cai với Diện tích: 445m2, Số tầng cao: 8 tầng, Chi phí xây dựng: 26 tỷ đồng. Bên cạnh phòng nghỉ, khách sạn còn phòng ăn chung và phòng ăn riêng.
Khách sạn bình dân ngày càng nhận được nhiều sự quan tâm của các chủ đầu tư. Loại phòng nghỉ này có thể tiếp cận với đa phần khách du lịch tại Việt Nam hiện nay. Tuy nhiên điều đó không có nghĩa là bất kỳ dự án nào cũng thành công. Thiết kế khách sạn bình dân đóng vai trò rất quan trọng trong việc thu hút và giữ chân khách hàng.
Khách sạn là một trong các loại hình dịch vụ mà trải nghiệm của khách hàng đóng vai trò rất quan trọng. Chính vì vậy, thiết kế khách sạn bên cạnh việc mang đến sự thoải mái nhất cho khách hàng thông qua việc bố trí công năng công trình. Phần nội thất và ngoại thất công trình cũng phải phù hợp với thẩm mỹ của đối tượng khách hàng hướng tới.
Với dự án thiết kế khách sạn bình dân Lào Cai Glamour, chủ đầu tư hướng tới đối tượng khách hàng trung tuổi. Đối tượng này thường yêu thích nét cổ điển, thanh lịch.
Về công năng, chủ đầu tư yêu cầu có nhà hàng bên cạnh khu vực chính là phòng nghỉ. Nhà hàng vừa có thể đáp ứng nhanh chóng yêu cầu của khách hàng, vừa giúp chủ đầu tư tăng lợi nhuận cho dự án.
Với chiều cao 8 tầng, mặt bằng từng tầng của dự án đã được các kiến trúc sư của VietArchitect bố trí cụ thể như sau.

Khu vực chính ở tầng hầm dự án là gara để xe. Bên cạnh đó còn có một số khu vực phụ như: Văn phòng (có diện tích 64m2), nhà kho, phòng kỹ thuật, phòng máy bơm, máy phát.

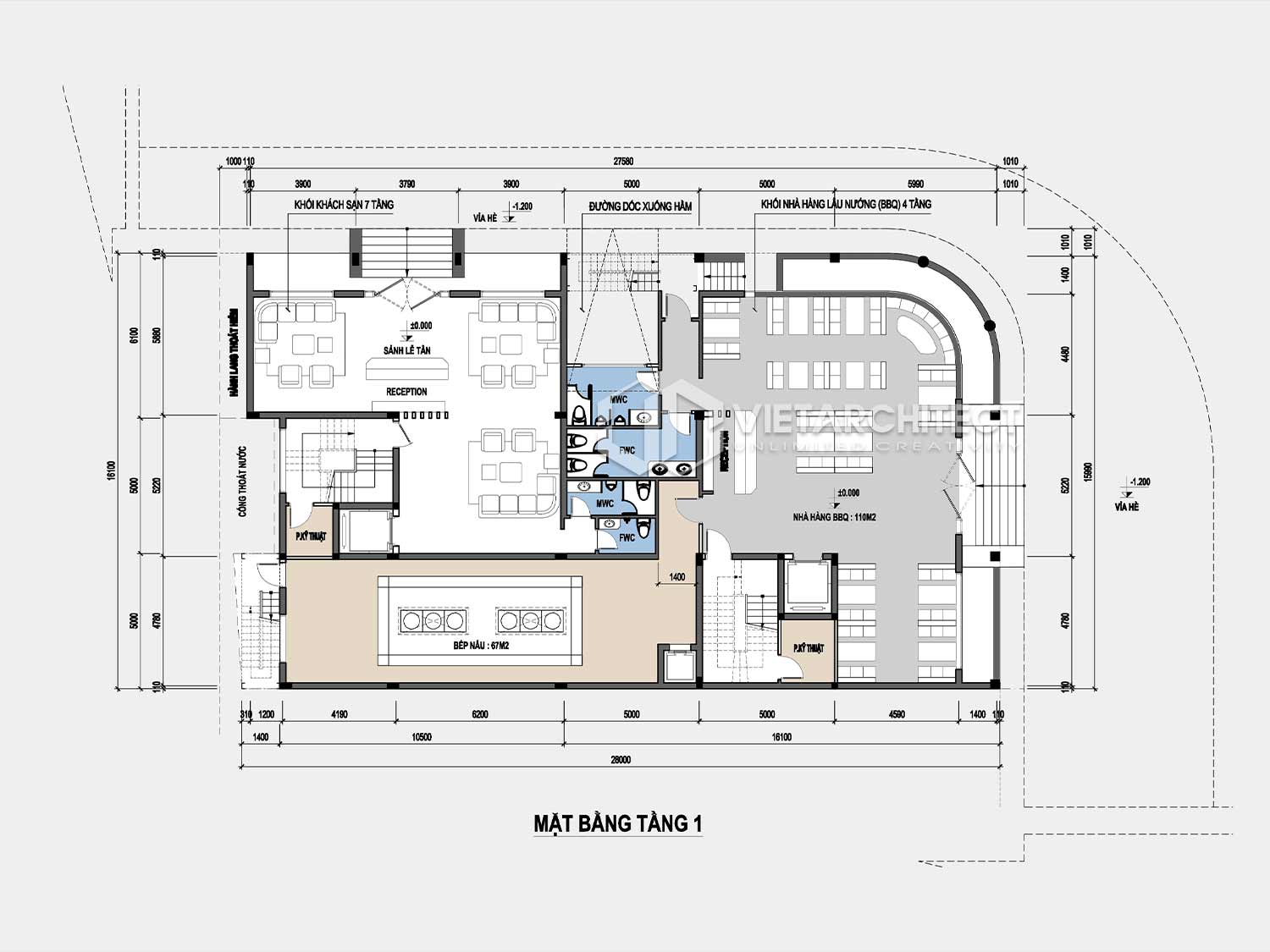
Thiết kế nhà hàng bình dân mặt bằng tầng 1.
Công trình nằm ở vị trí đẹp với 2 mặt tiền với 2 lối vào chính. 1 lối dẫn vào khu vực sảnh lễ tân, 1 lối dẫn vào nhà hàng BBQ có diện tích 110m2.
Tại sảnh lễ tân có các bộ bàn ghế sofa là nơi cho khách hàng nghỉ ngơi, chờ check-in, check-out. Cuối mặt bằng tầng 1 là khu vực bếp nấu có diện tích 67m2.

Thiết kế khách sạn bình dân mặt bằng tầng 2.
Mặt bằng tầng 2 của công trình được chia thành hai khu vực chính là khu vực phòng nghỉ là khu vực phòng ăn. Tầng 2 có tổng cộng 4 phòng nghỉ, trong đó có 1 phòng nghỉ VIP.
Khu vực phòng ăn được chia thành 3 phòng ăn chính (2 phòng ăn chung và 1 phòng ăn riêng tư).

Mặt bằng tầng 3 của công trình được bố trí tương tự. Tuy nhiên khu vực phòng ăn được chia thành các phòng nhỏ phục vụ những bữa ăn riêng tư, nhưng buổi gặp mặt ít người.

Thiết kế nhà hàng bình dân mặt bằng tầng 4.

Từ tầng 5 của công trình chỉ còn khối phòng ngủ. Khối phòng ăn trở thành khu vực sân phơi ngoài nhà và phòng nghỉ cho nhân viên.

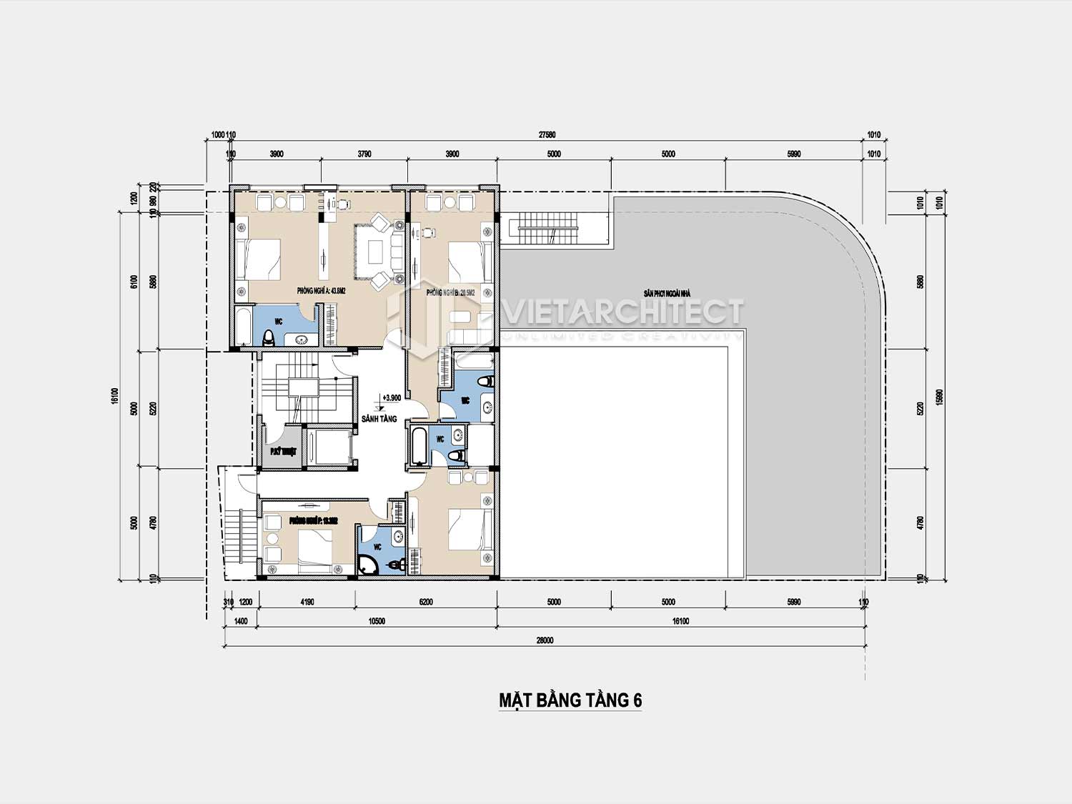
Thiết kế khách sạn bình dân mặt bằng tầng 6.

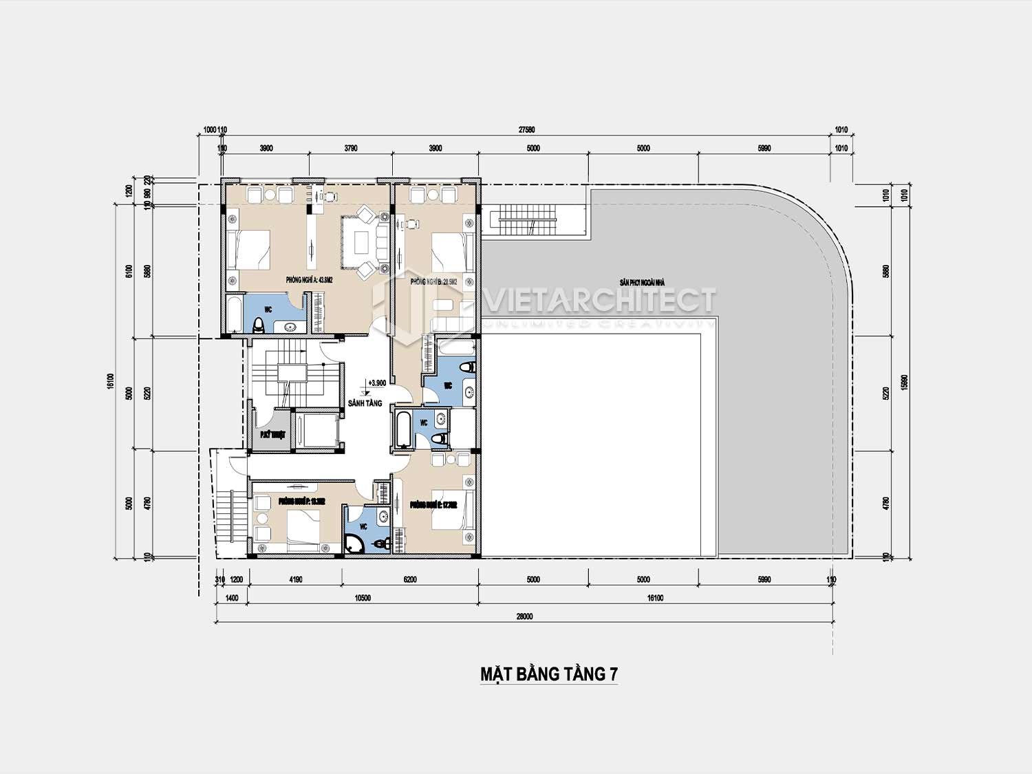
Thiết kế khách sạn bình dân mặt bằng tầng 7.

Thiết kế khách sạn bình dân mặt bằng tầng 8.
Yêu cầu của chủ đầu tư là hướng tới đối tượng khách hàng là những người trung tuổi. Chính vì vậy, phong cách thiết kế nhà hàng tân cổ điển là lựa chọn vô cùng phù hợp.
Phong cách tân cổ điển luôn mang tới cho mọi công trình sự tinh tế, sang trọng. Và đặc biệt phong cách này có thể thu hút mọi khách hàng ngay từ cái nhìn đầu tiên.

Hoa văn, phào chỉ tinh tế cầu kỳ là điều không thể thiếu trong phong cách thiết kế tân cổ điển. Đây cũng là đặc trưng tạo nên điểm khác biệt và đắt giá của phong cách này. Bên cạnh đó các kiến trúc sư của VietArchitect cũng lựa chọn lan can hoa văn hoa dự án giúp công trình trở nên lộng lẫy, xa hoa hơn.
Màu sắc chủ đạo của công trình là màu trắng đơn giản. Màu sắc này giúp làm nổi bật các họa tiết, hoa văn ấn tượng của phong cách thiết kế tân cổ điển.

Phần khối đế của công trình sử dụng sơn màu vàng nâu trầm ấm. Kết hợp với đó là những mảng tường sử dụng sơn giả đá giúp tăng thêm sự sang trọng cho công trình.
Hai khối chính của công trình (khối phòng nghỉ và khối phòng ăn) cũng được phân chia rõ ràng ở phần ngoại thất công trình. Khối phòng nghỉ có chiều cao là 8 tầng, khối phòng ăn có chiều cao là 5 tầng.

Loại cửa được sử dụng cho công trình vẫn là cửa kính quen thuộc trong các công trình hiện đại. Phần lớn mặt tiền tầng 1 được bao phủ bằng vật liệu này. Với kính, khách hàng có thể dễ dàng nhìn thấy trang trí và những hoạt động đang diễn ra bên trong nhà hàng. Từ đó, có thể thu hút nhiều khách hàng hơn.
Đồng thời, với vật liệu hiện đại này công trình có thể đón được nhiều ánh sáng tự nhiên hơn. Giúp không gian trở nên thoáng rộng hơn, nhiều view hơn cho khách hàng thoải mái ngắm cảnh.
Trên đây là toàn bộ thông tin về dự án thiết kế khách sạn bình dân theo phong cách tân cổ điển tại Lào Cai. Phong cách thiết kế này rất phù hợp với đối tượng khách hàng hướng tới. Xác định phong cách thiết kế là yếu tố vô cùng quan trọng quyết định đến thẩm mỹ dự án, nội thất và ngoại thất được sử dụng trong công trình.
Chính vì vậy chủ đầu tư nên lựa chọn phong cách phù hợp. Hoặc nhận tư vấn trực tiếp từ các kiến trúc sư giàu kinh nghiệm để lựa chọn được phong cách thiết kế phù hợp nhất.
Mọi thắc mắc về thiết kế, thi công công trình các bạn có thể kết nối trực tiếp với VietArchitect. Chúng tôi luôn sẵn sàng giải đáp mọi thắc mắc của bạn.
Mọi thắc mắc về thiết kế, thi công công trình và nhận báo giá trực tiếp các bạn có thể liên hệ trực tiếp với chúng tôi.