Dự án thiết kế khách sạn Vườn treo Sapa mang đậm chất truyền thống thực hiện bởi VietArchitect. Công trình có diện tích xây dựng 435m2, tổng mức đầu tư của dự án là 18 tỷ đồng.
Dự án thiết kế khách sạn Vườn treo Sapa mang đậm chất truyền thống được thực hiện bởi các kiến trúc sư của VietArchitect. Công trình nằm trong quy hoạch tổng thể dự án Làng du lịch Sapa. Dự án hướng tới trở thành mô hình phát triển du lịch tiêu biểu trên cả nước.
Dựa án khách sạn Vườn treo Sapa nằm trong tổng thể Làng du lịch Sapa. Chính vì thế, đầu tiên các kiến trúc sư của VietArchitect phải đảm bảo sự hài hòa của công trình với tổng thể.
Chủ đầu tư mong muốn khách sạn Vườn treo Sapa không chỉ đơn thuần là nơi để du khách nghỉ ngơi. Mà tại đây còn có thể giúp du khách khám phá thêm các nét độc đáo trong đặc trưng văn hóa tại Sapa.
Mặt bằng công năng của từng tầng được các kiến trúc sư của VietArchitect bố trí cụ thể như sau.

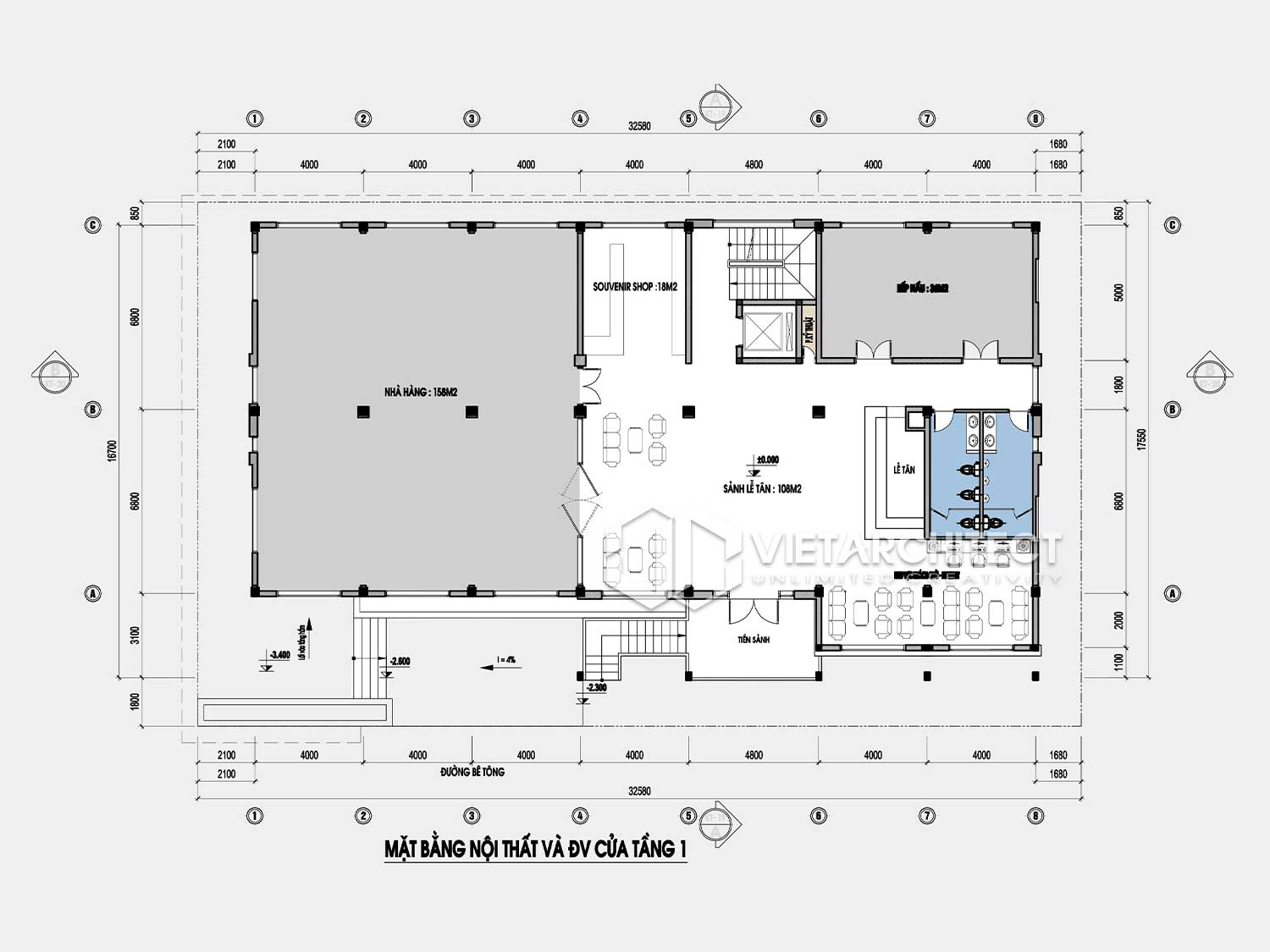
Thiết kế khách sạn Vườn treo Sapa mặt bằng tầng 1.
Từ lối vào tầng 1 dẫn đến khu vực sảnh lễ tân có diện tích 108m2. Tại đây có khu vực khách chờ tương đối rộng với các bộ bàn ghế sofa thoải mái. Tầng 1 cũng là nơi phục vụ các bữa ăn với nhà hàng có diện tích 158m2. Cạnh nhà hàng là quầy lưu niệm có diện tích 18m2.

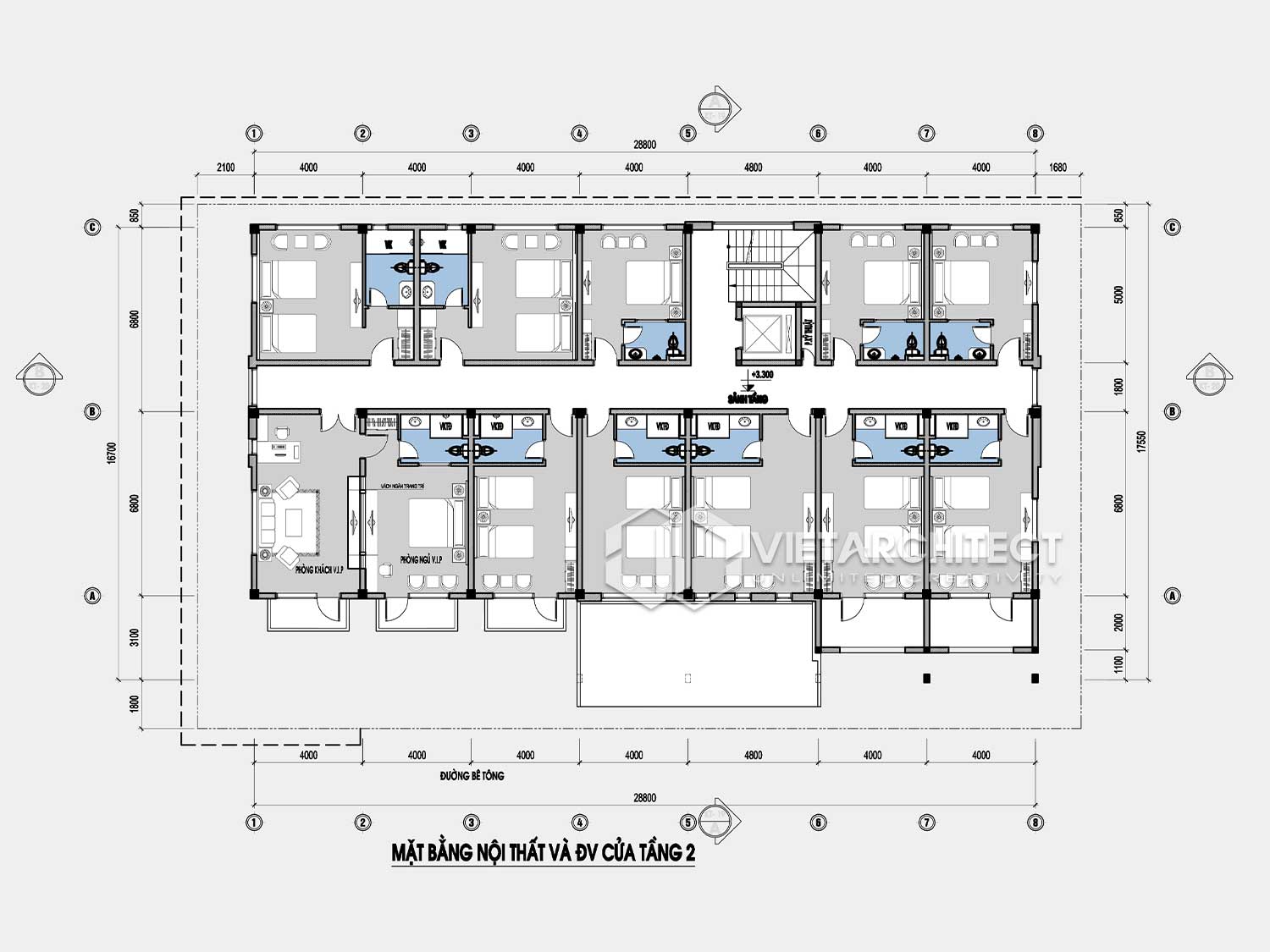
Thiết kế khách sạn Vườn treo Sapa mặt bằng tầng 2.

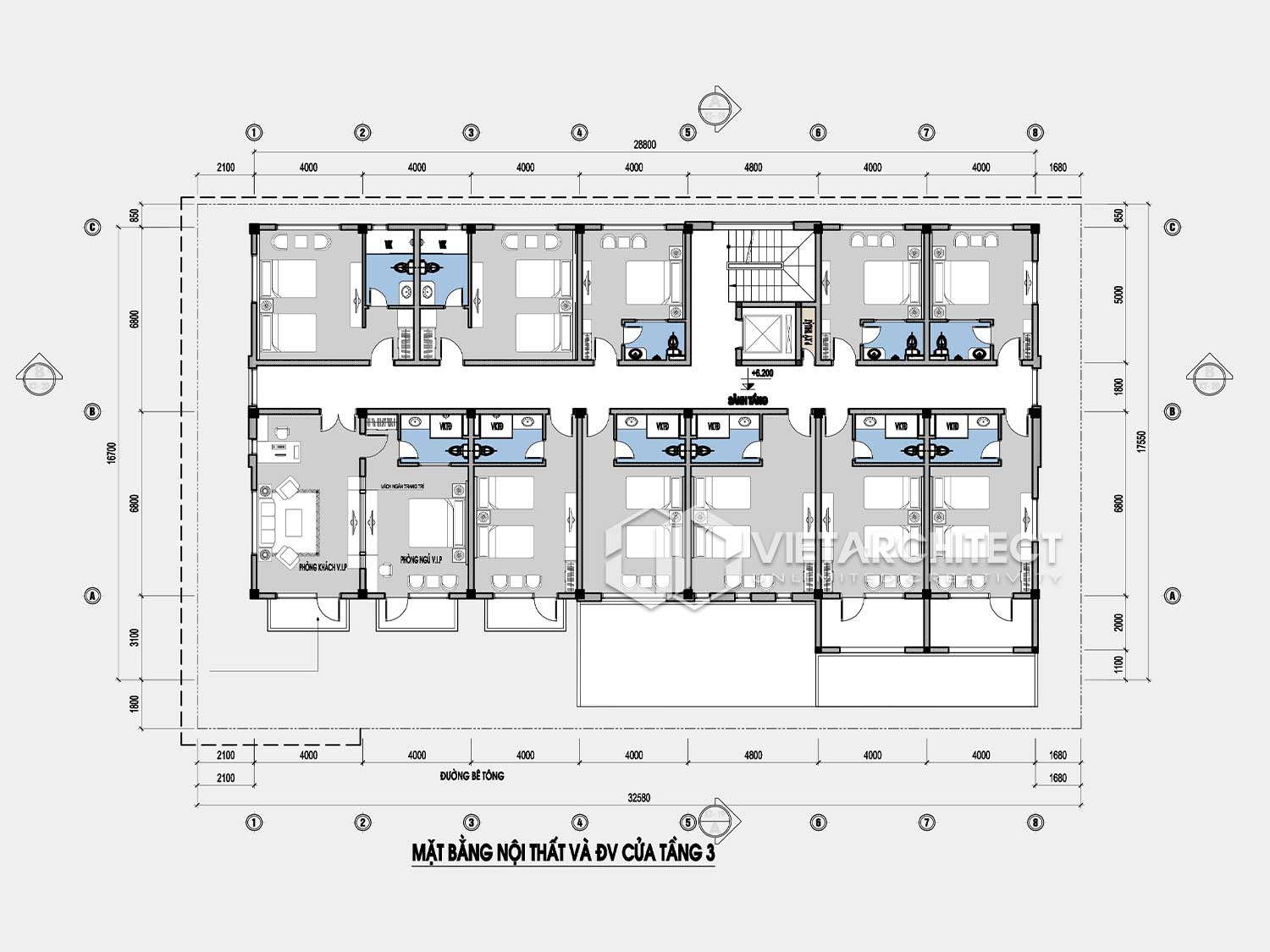
Thiết kế khách sạn Vườn treo Sapa mặt bằng tầng 3.

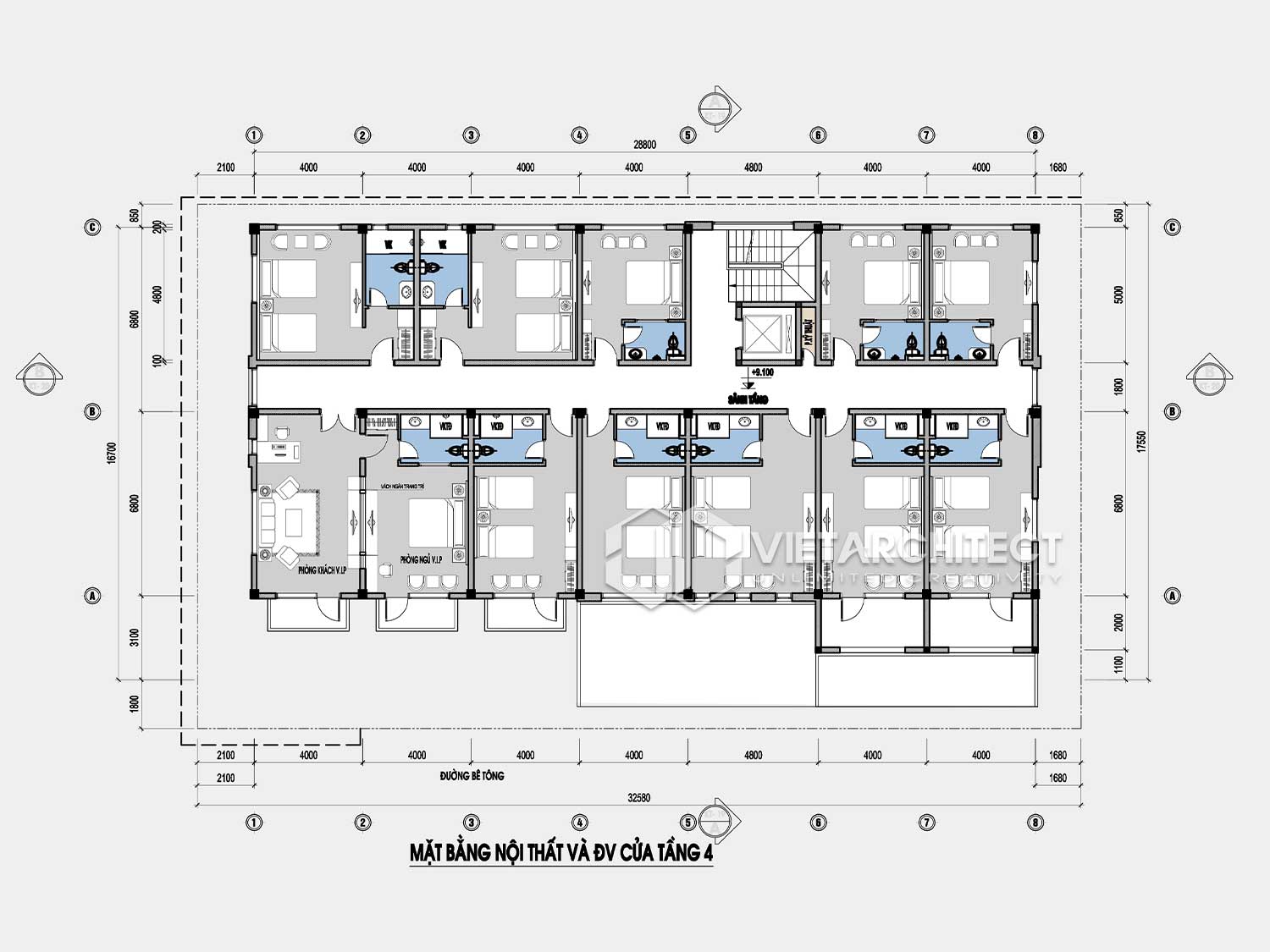
Thiết kế khách sạn Vườn treo Sapa mặt bằng tầng 4.
Mặt bằng tầng 2,3,4 của công trình được bố trí tương tự nhau. Tổng thể dự án có 33 phòng nghỉ. Trong đó có 3 phòng nghỉ VIP, 21 phòng có 2 giường và 9 phòng nghỉ 1 giường.
Thực hiện phối cảnh thiết kế khách sạn, các kiến trúc sư của VietArchitect đã cố gắng truyền tải tinh thần truyền thống thông qua dự án.

Công trình sử dụng màu sắc chủ đạo là màu trắng. Màu sắc này được kết hợp với điểm nhấn từ gạch thẻ inax màu nâu ở phần khối đế công trình, và màu xám xanh ở phần gạch mái.
Điểm nhấn của công trình không thể không nhắc tới gạch thẻ inax màu cam đất nổi bật ở phần trên dự án. Gạch thẻ giả những viên gạch mộc tự nhiên đem đến nét truyền thống cho công trình.

Ngoại thất công trình được thiết kế bất đối xứng mang đến sự hiện đại, trẻ trung cho công trình.

Trên đây là toàn bộ thông tin về dự án thiết kế khách sạn Vườn treo Sapa được thực hiện bởi các kiến trúc sư của VietArchitect. Các bạn nghĩ sao về công trình đừng quên để lại ý kiến của mình bên dưới phần bình luận.
Để được nhận tư vấn trực tiếp từ các kiến trúc sư của VietArchitect, các bạn hãy kết nối với chúng tôi.