Dự án thiết kế khách sạn San hô đỏ tại Quảng Bình. Khách sạn được xây dựng trên khu đất có diện tích 5 364m2. Diện tích xây dựng 1 830m2.
Dự án thiết kế khách sạn San hô đỏ tại Quảng Bình. Khách sạn được xây dựng trên khu đất có diện tích 5 364m2. Diện tích xây dựng 1 830m2.

Mặt bằng tầng hầm khách sạn San hô đỏ.

Mặt bằng tầng 1 khách sạn San hô đỏ.

Mặt bằng tầng 2 khách sạn San hô đỏ.

Mặt bằng tầng 3 khách sạn San hô đỏ.

Mặt bằng tầng 4 khách sạn San hô đỏ.

Mặt bằng tầng 5-15 khách sạn San hô đỏ.

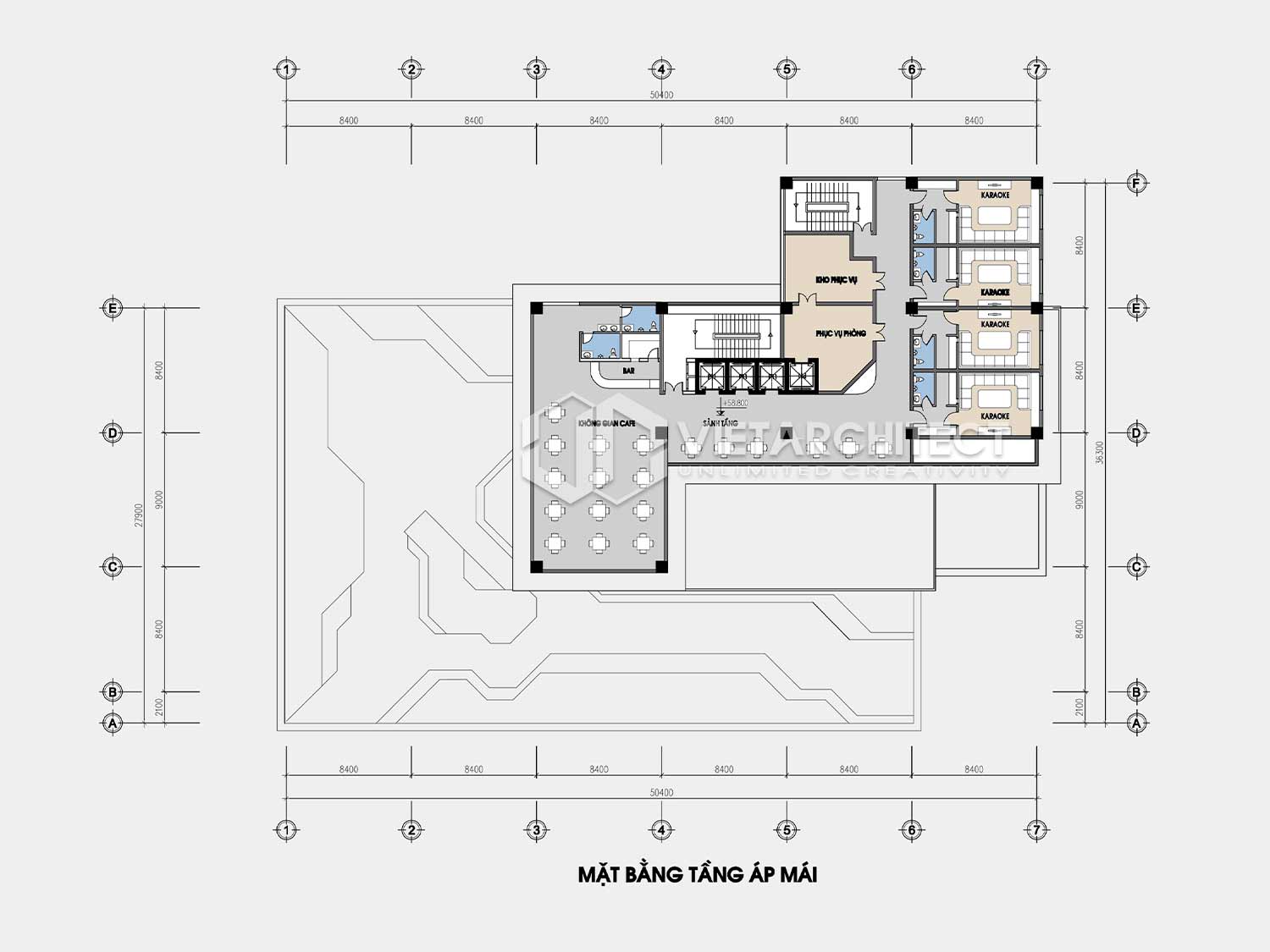
Mặt bằng tầng áp mái khách sạn San hô đỏ.

Mặt bằng tầng mái khách sạn San hô đỏ.

Công trình sử dụng mảu sắc chủ đạo là màu trắng kết hợp với những mảng màu cam thú vị. Hai màu sắc kết hợp với nhau đem đến tổng thể công trình tươi sáng, trẻ trung.
Ngoại thất công trình được có thiết kế được vát ấn tượng và độc đáo.
Các bạn nghĩ sao về công trình này, đừng quên để lại ý kiến của mình bên dưới phần bình luận.
Kết nối ngay với VietArchitect để được nhận tư vấn trực tiếp.