Dự án thiết kế khách sạn Bamboo Sapa được các kiến trúc sư của VietArchitect xây dựng theo tiêu chuẩn khách sạn 3 sao. Công trình được xây dựng trên diện tích 1 974m2.
Dự án thiết kế khách sạn Bamboo Sapa được các kiến trúc sư của VietArchitect xây dựng theo tiêu chuẩn khách sạn 4 sao. Công trình được xây dựng trên diện tích 1 974m2.
Yêu cầu đầu tiên của chủ đầu tư là đảm bảo khách sạn Bamboo Sapa phải đảm bảo các tiêu chuẩn của khách sạn 4 sao.
Khách du lịch đến sapa thường là những khách hàng trẻ. Vì thế phải thiết kế công trình phù hợp với thẩm mỹ của đối tượng khách hàng này. Công trình phải có nơi sống ảo độc đáo để khách hàng lưu lại những bức ảnh đáng nhớ. Từ đó lan tỏa hình ảnh của khách sạn, giúp khách sạn tiếp cận với nhiều khách hàng hơn.
Thực hiện yêu cầu của chủ đầu tư các kiến trúc sư của VietArchitect đã thiết kế công trình cụ thể như sau.

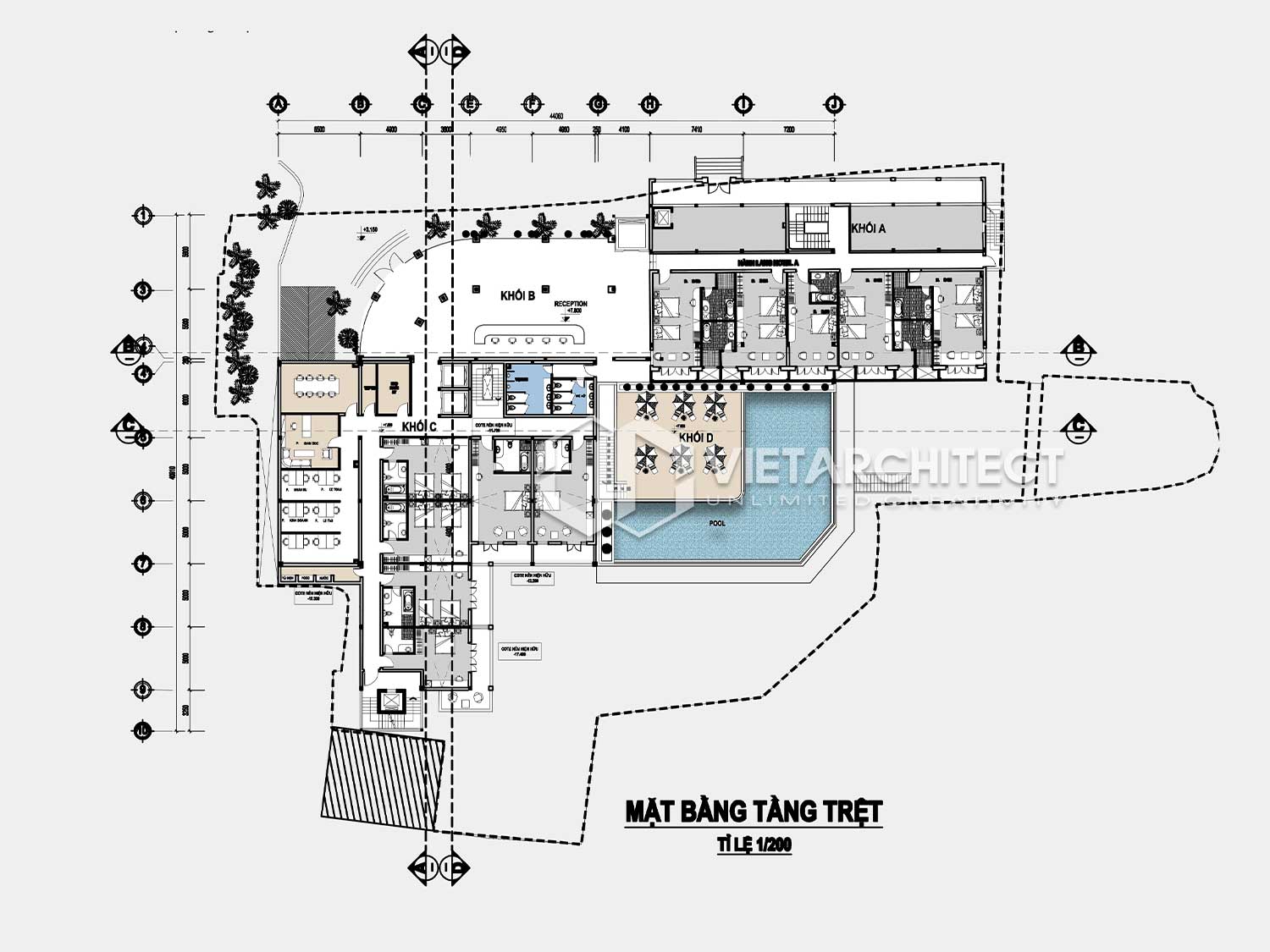
Thiết kế khách sạn Bamboo Sapa mặt bằng tầng trệt.

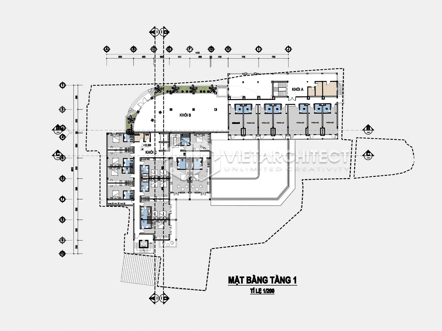
Thiết kế khách sạn Bamboo Sapa mặt bằng tầng 1.

Thiết kế khách sạn Bamboo Sapa mặt bằng tầng 2.

Thiết kế khách sạn Bamboo Sapa mặt bằng tầng 3.

Thiết kế khách sạn Bamboo Sapa mặt bằng tầng 4.

Thiết kế khách sạn Bamboo Sapa mặt bằng tầng b1.

Thiết kế khách sạn Bamboo Sapa mặt bằng tầng b2.

Thiết kế khách sạn Bamboo Sapa mặt bằng tầng b4.

Thiết kế khách sạn Bamboo Sapa mặt bằng tầng b5.
Các kiến trúc sư của VietArchitect đã thực hiện thiết kế phối cảnh dự án với hai phương án. Cả hai phương án đều được thiết kế theo phong cách hiện đại. Đây là phong cách rất phù hợp với đối tượng khách hàng trẻ.

Phương án phối cảnh thứ nhất sử dụng màu sắc chủ đạo là màu trắng. Kết hợp với màu xám nâu ở phần khối đế và phần mái của công trình. Hai màu sắc này là sự kết hợp không bao giờ lỗi thời, giúp công trình vừa có hiện trẻ trung nhưng cũng vừa mang tới sự sang trọng.

Lan can và cửa của công trình đều sử dụng vật liệu kính giúp công trình luôn tràn ngập ánh sáng tự nhiên. Đồng thời, với vật liệu này, du khách có thể thoải mái ngắm nhìn view thành phố, núi rừng.

Phương án phối cảnh thứ hai mang đến sự tươi trẻ hơn khi sử dụng màu đỏ ở phần mái của công trình.

Điểm nhấn của công trình là hồ bơi vô cực độc đáo. Đây là nơi sống ảo tuyệt vời cho các bạn trẻ.
Phương án phối cảnh cuối cùng được chủ đầu tư lựa chọn là phương án thứ nhất.
.jpg)
Thực tế thiết kế khách sạn Bamboo Sapa.
Còn các bạn, phương án nào làm các bạn ấn tượng hơn. Đừng quên để lại ý kiến của mình bên dưới phần bình luận.
Kết nối ngay với chúng tôi để được nhận tư vấn miễn phí về thiết kế, thi công công trình.