Dự án thiết kế nhà điều hành cho Công ty Cổ phần Điện Nam Triệu. Dự án được xây dựng trên diện tích 1 505m2. Chiều cao công trình 7 tầng.
Nhà điều hành có thể coi là cơ quan đầu não của cả công ty. Thông qua thiết kế nhà điều hành, khách hàng có thể đánh giá sự chuyên nghiệp, khả năng làm việc và phương châm hoạt động của doanh nghiệp.
Tuân thủ theo các tiêu chí đó, các kiến trúc sư của VietArchitect đã thực hiện dự án thiết kế nhà điều hành cho Công ty Cổ phần Điện Nam Triệu.
Các kiến trúc sư của VietArchitect đã thực hiện dự án thiết kế nhả điều hành
Chủ đầu tư đã đặt ra một số yêu cầu cụ thể với các kiến trúc sư của VietArchitect về bố trí công năng và thiết kế ngoại thất dự án.
Về công năng công trình.
- Khu vực làm việc phải có phòng làm việc riêng cho các phòng ban và không gian làm việc đa năng theo dạng kết cấu mở. Bên cạnh đó, đối với thiết kế nhà điều hành thì cũng không thể thiếu phòng làm việc của giám đốc, phó giám đốc, phòng họp,...
- Ngoài ra chủ đầu tư yêu cầu công trình phải có phòng ăn và phòng hội trường.
Về thiết kế ngoại thất công trình, chủ đầu tư yêu cầu thiết kế ngoại thất đơn giản nhưng vẫn đảm bảo yếu tố thẩm mỹ và đem đến sự độc đáo khác biệt của dự án so với các công trình xung quanh.
Công trình có chiều cao 7 tầng. Công năng chính của dự án là phòng làm việc. Mặt bằng của từng tầng đã được bố trí cụ thể như sau.

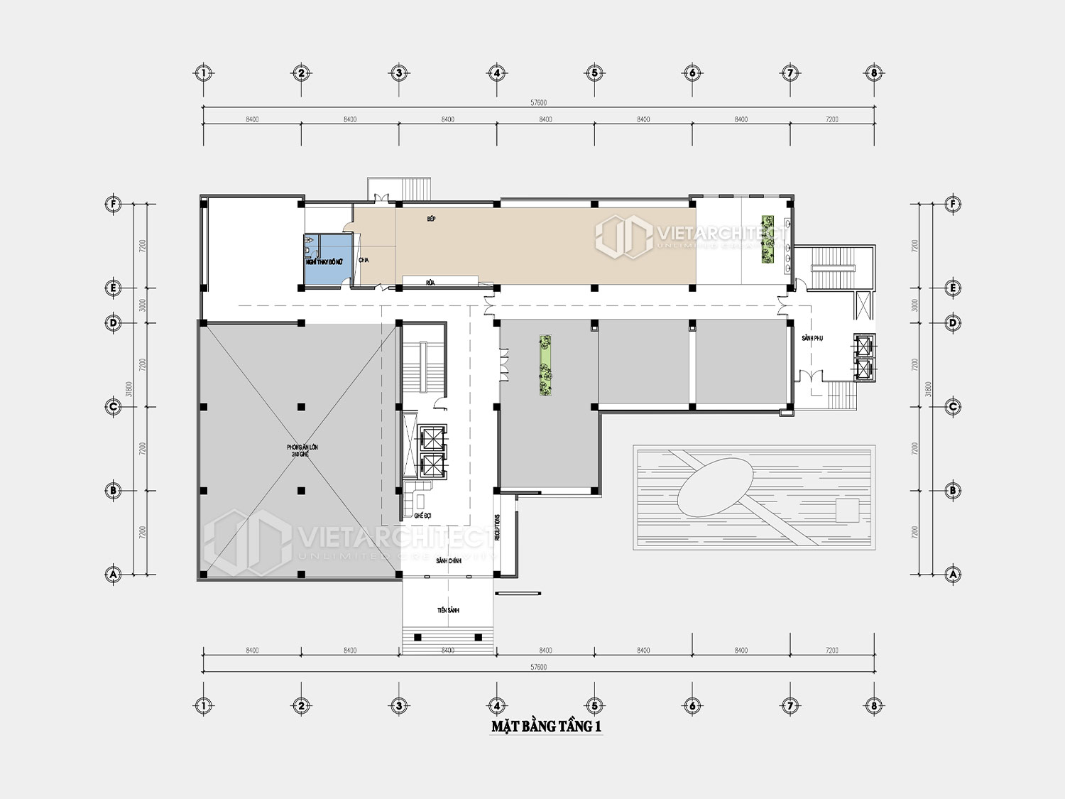
Mặt bằng tầng 1 thiết kế nhà điều hành Nam Triệu.
Từ lối vào chính của tầng 1 dẫn vào khu vực sảnh tiếp tân. Khu vực này được bố trí ghế đợi thể hiện sự chuyên nghiệp và chỉn chu.
Tiếp đến là phòng ăn lớn có 240 ghế sẵn sàng phục vụ nhu cầu ăn uống của các nhân viên làm việc trong tòa nhà. Đối diện phòng ăn là khu vực làm việc có sảnh phụ và lối vào riêng. Cuối mặt bằng tầng 1 là bếp nấu.

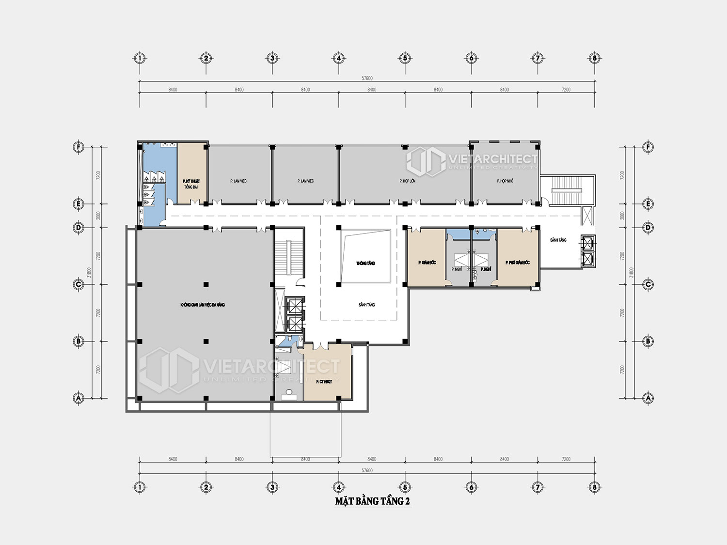
Mặt bằng tầng 2 thiết kế nhà điều hành Nam Triệu.
Mặt bằng tầng 2 gồm có không gian làm việc đa năng, phòng làm việc, phòng họp, phòng làm việc của giám đốc, phó giám đốc và Chủ tịch Hội đồng quản trị. Trong đó, phòng làm việc của các cán bộ cấp cao có phòng nghỉ riêng.

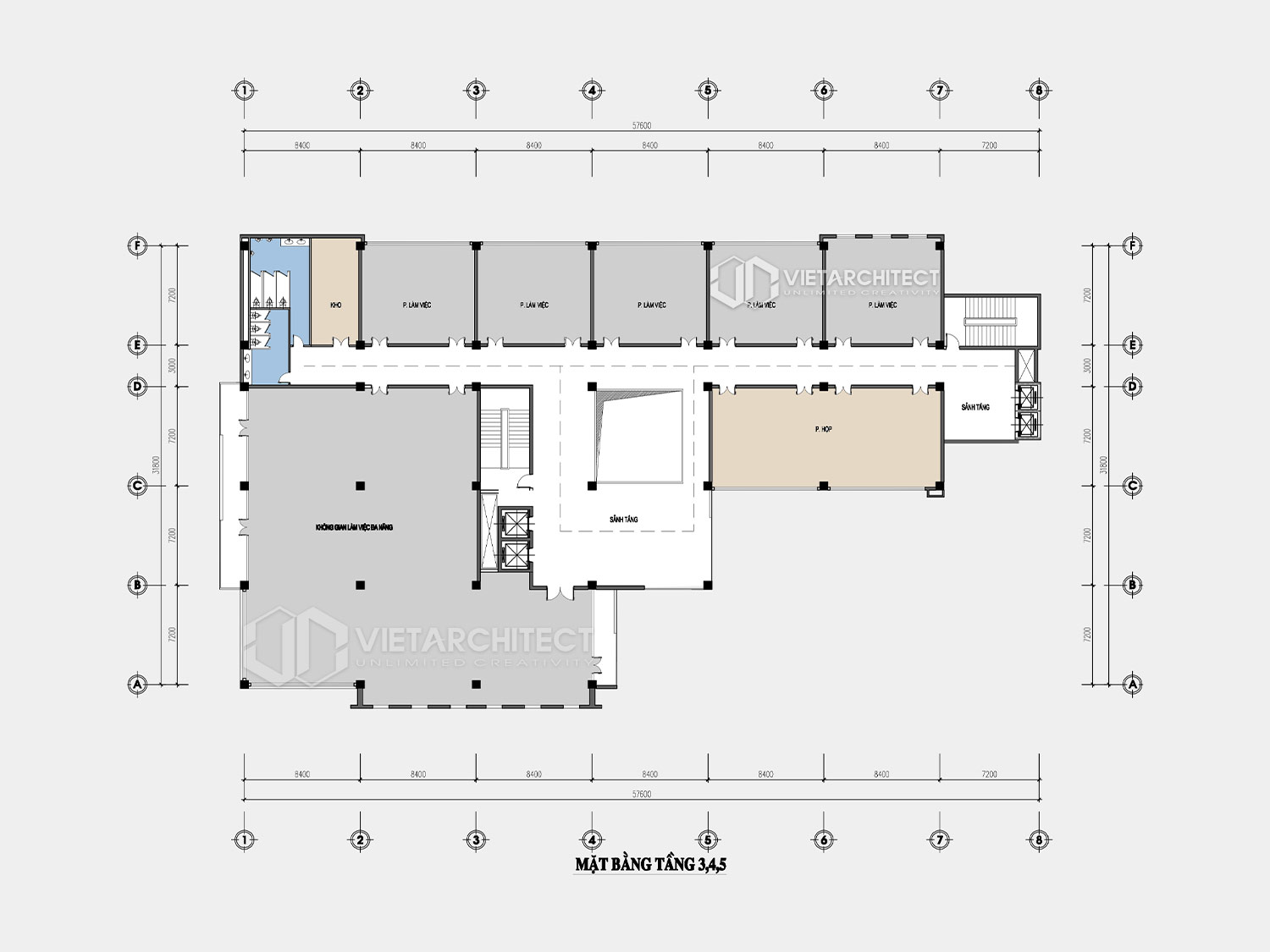
Thiết kế nhà điều hành Nam Triệu mặt bằng tầng 3, 4, 5, 6.
Mặt bằng tầng 3,4,5 của công trình được bố trí tương tự nhau. Mỗi tầng có 1 không gian làm việc đa năng, 5 phòng làm việc, 1 phòng họp lớn, 1 nhà kho và 2 nhà vệ sinh.

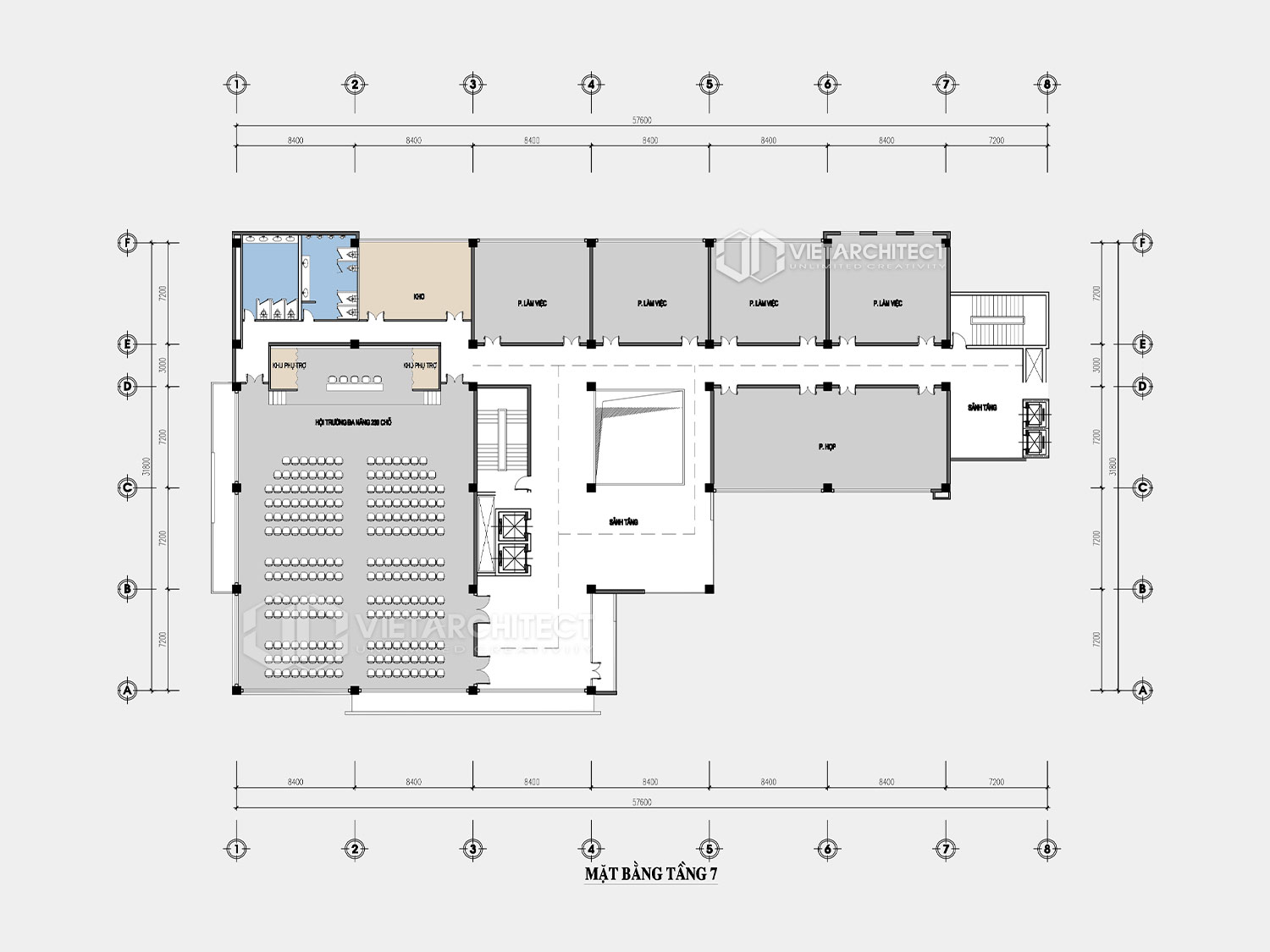
Thiết kế nhà điều hành Nam Triệu mặt bằng tầng 7.
Mặt bằng tầng 7 của dự án gồm có 4 phòng làm việc, 1 phòng họp lớn, 1 nhà kho và phòng hội trường đa năng có sức chứa 230 chỗ.

Thiết kế nhà điều hành Nam Triệu mặt bằng tầng áp mái gồm các phòng kỹ thuật.
Với bố trí mặt bằng công năng của từng tầng như vậy, các kiến trúc sư của VietArchitect đã đáp ứng được yêu cầu đặt ra của chủ đầu tư.
Không gian làm việc đa năng là không gian rất phổ biến trong tòa nhà văn phòng hiện đại. Khu vực này có thể tăng cường sự gắn kết, trao đổi giữa các nhân viên, tăng khả năng sáng tạo. Không gian làm việc mở là lựa chọn rất đáng được chủ đầu tư cân nhắc khi thiết kế nhà điều hành nói riêng và tòa nhà văn phòng nói chung.
Thực hiện phối cảnh thiết kế nhà điều hành, các kiến trúc sư của VietArchitect bám sát yêu cầu của chủ đầu tư là thiết kế nhà điều hành hiện đại, trẻ trung. Đơn giản nhưng vẫn phải có sự nổi bật so với các công trình xung quanh.

Màu sắc chủ đạo được lựa chọn sử dụng cho ngoại thất công trình là màu trắng và màu ghi. Hai màu sắc trung tính này có thể kết hợp hài hòa với nhau tạo nên tổng thể trang nhã, hiện đại. Đây cũng là màu sắc hợp với mệnh của chủ đầu tư.
Trong xây dựng, quan niệm về phong thủy, màu hợp mệnh luôn được chủ đầu tư rất quan tâm.
Lĩnh vực chính của công ty là sản xuất thiết bị điện. Để thể hiện yếu tố kỹ thuật này, VietArchitect đã lựa chọn hệ thống trụ cột vuông cho công trình. Kết hợp với tổng thể ngoại thất, trụ cột vuông thể hiện sự khỏe khoắn, mạnh mẽ và bền vững. Các đặc tính này rất phù hợp với chuyên môn của công ty.

Xung quanh công trình các kiến trúc sư của VietArchitect đã bố trí những bồn cây xanh, đài phun nước. Vừa là điểm nhấn trang trí để công trình trở nên nổi bật. Vừa giúp không gian trở nên trong lành và thoáng mát hơn.
Trên nền trắng, logo của công ty với màu đỏ cũng vô cùng nổi bật và ấn tượng.
Các bạn nghĩ sao về công trình này, đừng quên để lại ý kiến của mình bên dưới phần bình luận!
Mọi thắc mắc về thiết kế, thi công công trình các bạn có thể liên hệ trực tiếp với VietArchitect để được nhận tư vấn.