Dự án thiết kế tòa nhà văn phòng An Phát building với chiều cao 5 tầng và 1 tầng trệt. Diện tích xây dựng của công trình là 290m2. Tổng mức đầu tư của công trình là 10 tỷ đồng.
Với sự phát triển nhanh chóng của các công ty quy mô nhỏ và vừa, nhu cầu thuê văn phòng làm việc tăng cao. Chính vì vậy, đầu tư công trình tòa nhà văn phòng cho thuê là lựa chọn của rất nhiều chủ đầu tư. Thiết kế tòa nhà văn phòng ảnh hưởng trực tiếp tới giá trị công trình. Chủ đầu tư nên tìm đơn vị thiết kế uy tín, có nhiều kinh nghiệm.
Yêu cầu của chủ đầu tư đối với các kiến trúc sư của VietArchitect là thiết kế tòa nhà văn phòng theo phong cách hiện đại. Công trình phải thể hiện được sự trẻ trung, năng động.
Về công năng dự án, chủ đầu tư yêu cầu công trinh phải có gara để xe, đáp ứng yêu cầu sử dụng của nhân viên trong văn phòng.
Đáp ứng yêu cầu của chủ đầu tư, các kiến trúc sư của VietArchitect đã thực hiện bố trí mặt bằng công năng và phối cảnh công trình cụ thể như sau.
Công trình gồm có 5 tầng và 1 tầng trệt.

Thiết kế tòa nhà văn phòng tầng trệt.
Tầng trệt của dự án là khu vực gara để xe có diện tích 148m2. Bên cạnh đó là các khu vực phụ khác như Phòng kỹ thuật (diện tích 10,7m2), phòng máy phát (diện tích 13m2), nhà kho và nhà vệ sinh.
Với thiết kế gara để xe ở tầng trệt có thể giúp chủ đầu tư giảm một phần khá lớn chi phí xây dựng so với việc xây dựng tầng hầm.

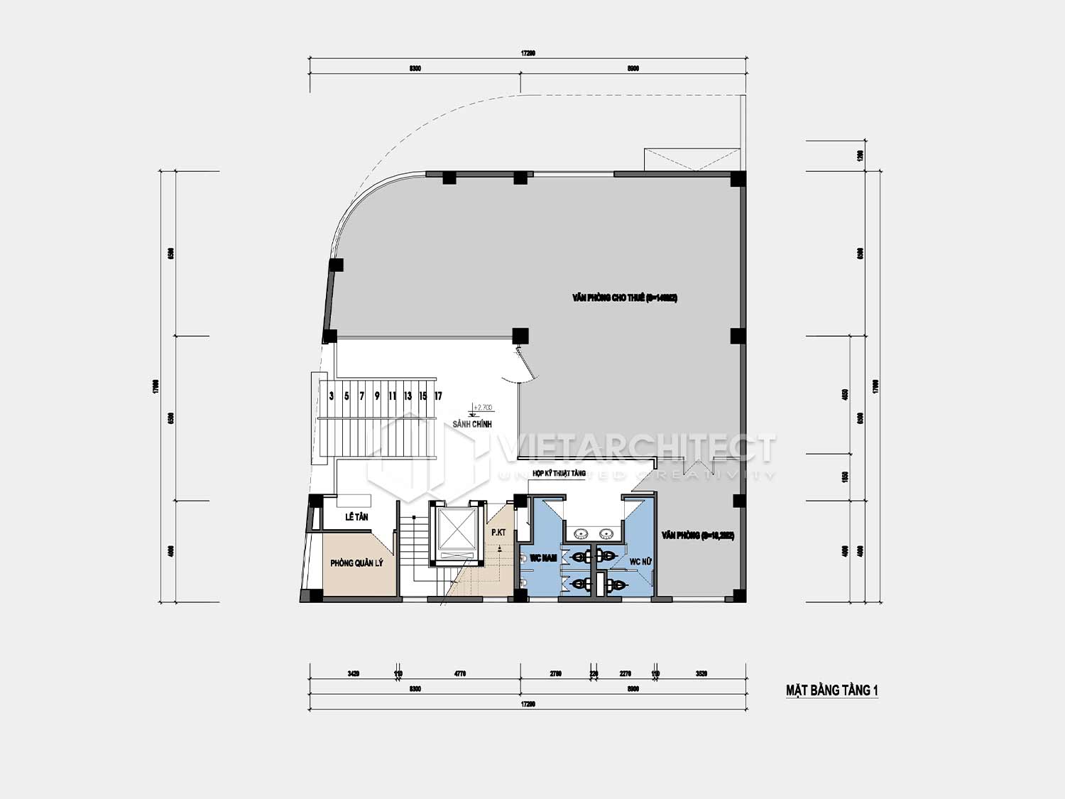
Thiết kế tòa nhà văn phòng mặt bằng tầng 1.
Mặt bằng tầng 1 có 2 văn phòng làm việc và 1 phòng quản lý. Văn phòng cho thuê có diện tích 140m2, chiếm phần lớn diện tích tại tầng 1. Văn phòng nhỏ có diện tích 18,2m2.
3 phòng làm việc sử dụng chung 2 phòng vệ sinh.

Thiết kế tòa nhà văn phòng An Phát tầng 2,3,4.
Tầng 2,3,4 của công trình được bố trí tương tự nhau. Mỗi tầng đều gồm có 3 văn phòng, 2 nhà vệ sinh, thang máy và thang bộ.
Văn phòng có diện tích lớn nhất là 200m2. Văn phòng có diện tích nhỏ nhất là 19,4m2.

Thiết kế tòa nhà văn phòng mặt bằng tầng 5.
Tầng 5 của công trình có không gian phục vụ đa năng. Tại đây có thể phục vụ đồ uống, suất ăn, đồ ăn nhanh cho nhân viên làm việc trong tòa nhà. Với bố trí mặt bằng công năng công trình đa dạng có thể giúp chủ đầu tư thu được nhiều lợi ích kinh tế hơn, tận dụng tối đa giá trị công trình.
Sau quá trình bàn bạc cùng chủ đầu tư, các kiến trúc sư của VietArchitect lựa chọn phong cách thiết kế hiện đại cho công trình. Phong cách này vừa giúp chủ đầu tư có thể tiết kiệm chi phí xây dựng, vừa hài hòa với kiến trúc của các công trình xung quanh, phù hợp với thẩm mỹ hiện đại.
Phần khối để công trình sử dụng đá lát màu đỏ nâu. Phần trên công trình được bao phủ phần lớn bằng vật liệu kính hiện đại. Kết hợp với những mảng bê tông có tác dụng trang trí và hạn chế tác động nhiệt vào công trình.

Thiết kế ngoại thất công trình tương đối đơn giản, hiện đại uốn cong ôm lấy hai mặt tiền giá. Đây là những yếu tố đảm bảo giá trị của công trình khi được khai thác trong thực tế.
Trên đây là một số thông tin về dự án thiết kế tòa nhà văn phòng An Phát Building. Các bạn nghĩ sao về công trình này, đừng quên để lại ý kiến của mình bên dưới phần bình luận.
Kết nối ngay với chúng tôi.