Dự án thiết tòa nhà văn phòng Hoàng Sa được thực hiện bởi VietArchitect. Diện tích khu đất 728m2. Diện tích xây dựng 393m2, chi phí xây dựng công trình 39 tỷ đồng.
Tòa nhà văn phòng Hoàng Sa là công trình đặc biệt bởi nó có sự kết hợp giữa văn phòng làm việc và phòng nghỉ được kết hợp giữa văn phòng, nhà hàng. Với nhiều công năng phức hợp, chắc chắn dự án thiết kế tòa nhà văn phòng Hoàng Sa sẽ đạt được hiệu quả khai thác tốt trong thực tế.
Công trình có chiều cao 10 tầng và 1 tầng trệt. Mặt bằng từng tầng đã được các kiến trúc sư của VietArchitect bố trí cụ thể như sau.

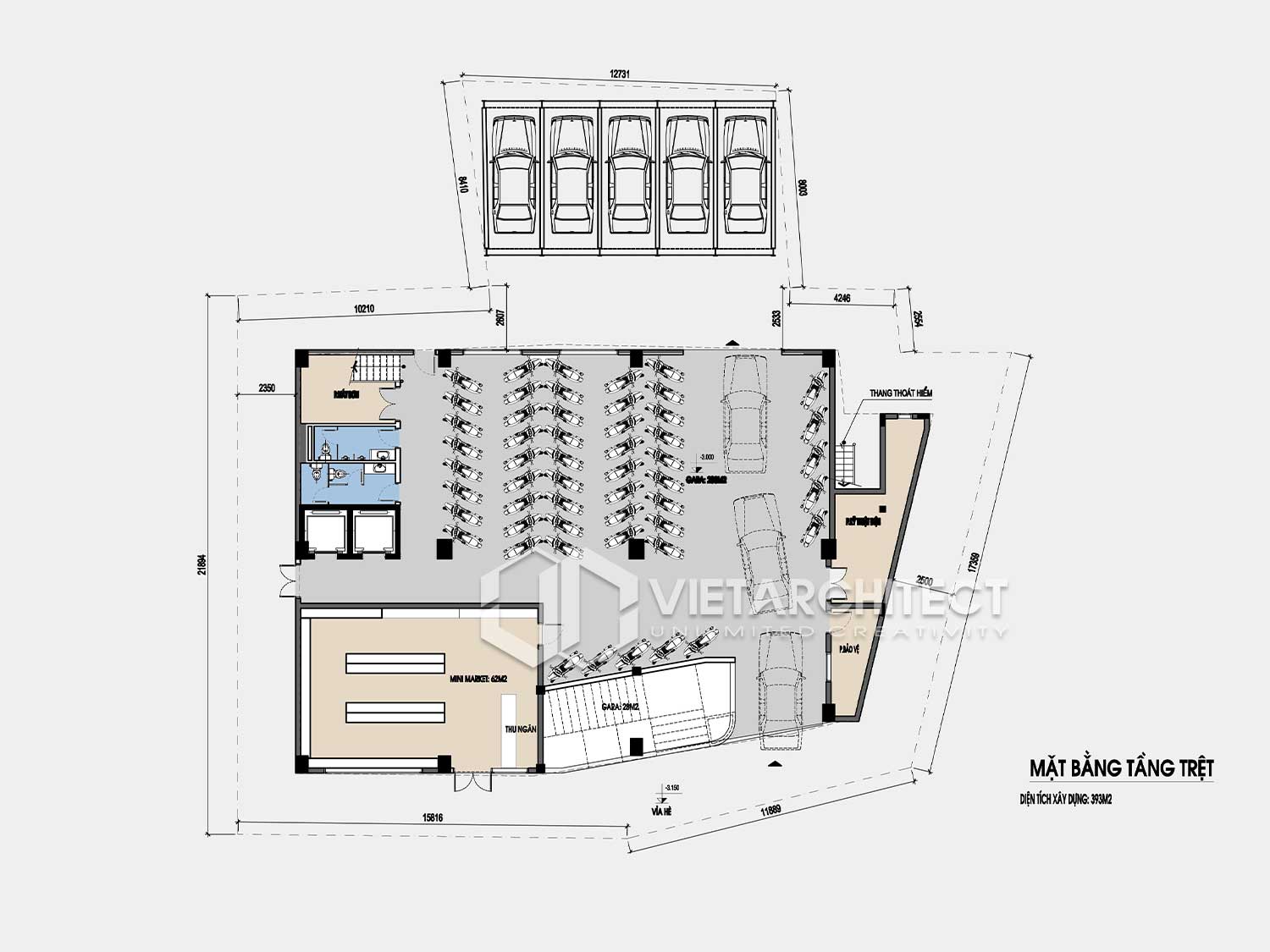
Thiết kế tòa nhà văn phòng Hoàng Sa tầng trệt.
Công năng chính ở tầng trệt công trình là gara để xe có diện tích hơn 200m2. Tầng trệt công trình cũng có một siêu thị nhỏ có diện tích 62m2. Bên cạnh đó là một số khu vực phụ như phòng bảo vệ, phòng kỹ thuật, phòng máy bơm, nhà vệ sinh.

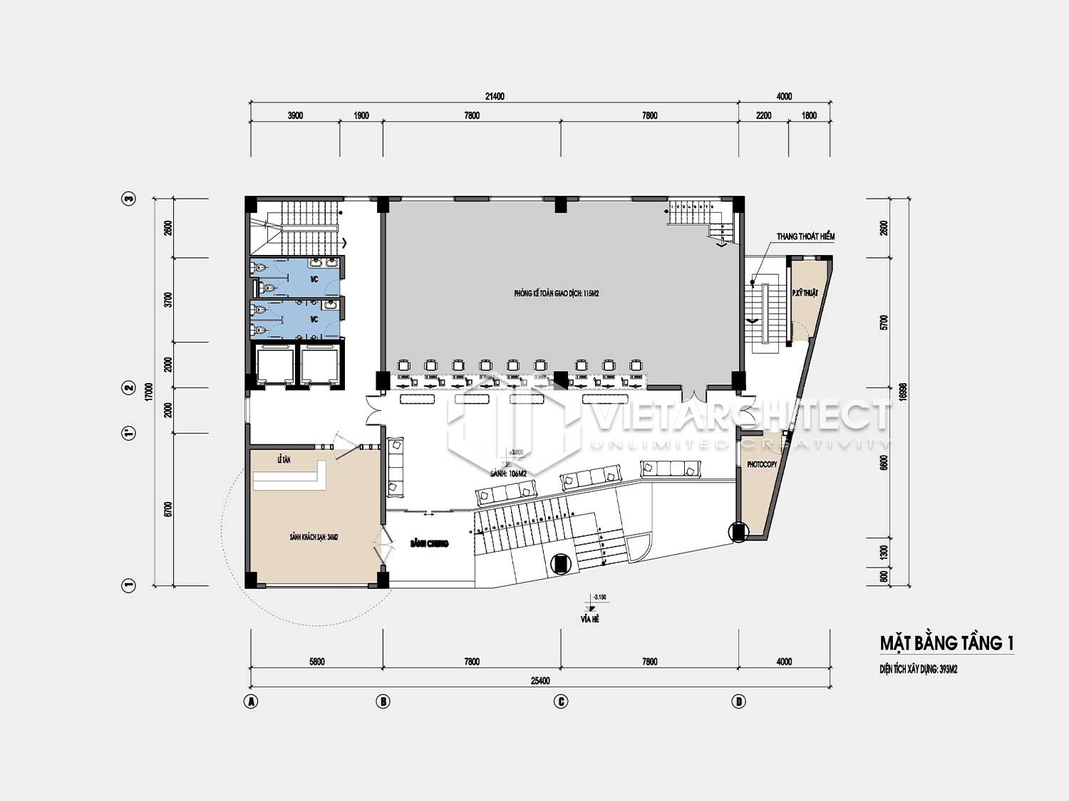
Thiết kế tòa nhà văn phòng Hoàng Sa mặt bằng tầng 1.
Với hai công năng chính của công trình là văn phòng làm việc và phòng nghỉ khách sạn. Tầng 1 có hai sảnh, trong đó sảnh chính là sảnh văn phòng có diện tích 106m2, sảnh khách sạn nhỏ hơn có diện tích 34m2.
Mặt bằng tầng 1 còn có phòng kết toán giao dịch có diện tích 115m2.

Thiết kế tòa nhà văn phòng Hoàng Sa mặt bằng tầng 2.
Mặt bằng tầng 2 của công trình gồm có Phòng kế toán giao dịch có diện tích 162m2, Phòng giám đốc có diện tích 33m2, Phòng kỹ thuật và phòng Photocopy.

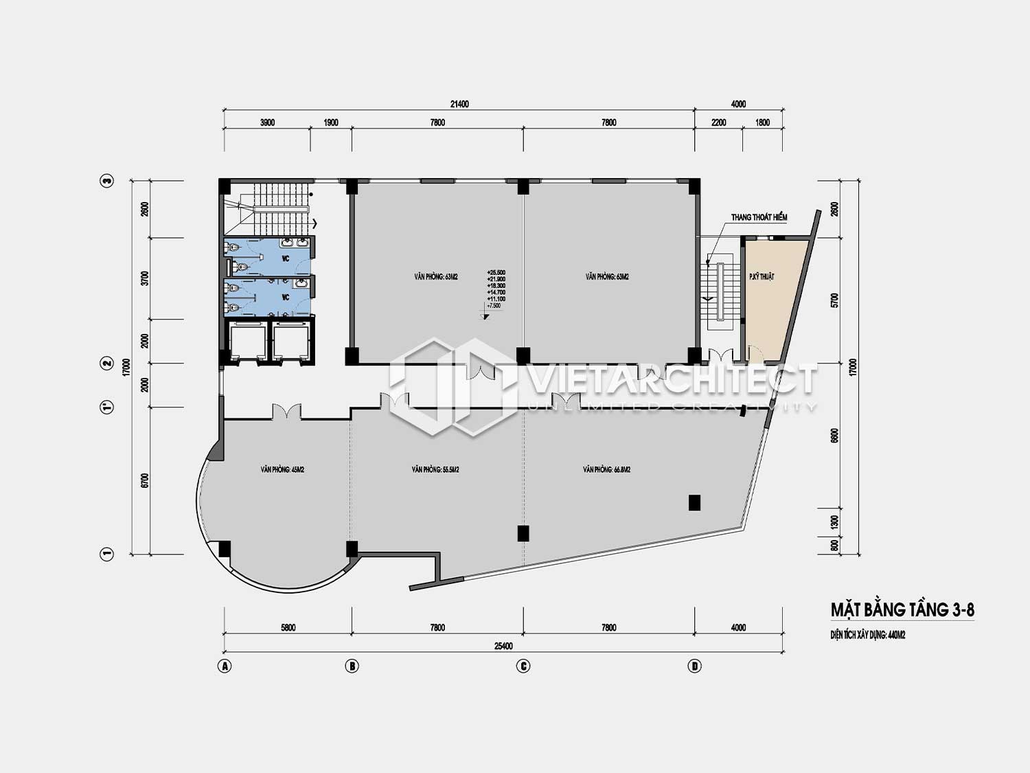
Thiết kế tòa nhà văn phòng Hoàng Sa mặt bằng tầng 3-8.
Mặt bằng từ tầng 3 đến tầng 8 của công trình được phân chia thành các văn phòng cho thuê. Mỗi tầng có 5 văn phòng. Trong đó, văn phòng lớn nhất có diện tích 66m2, văn phòng nhỏ nhất có diện tích 48m2.

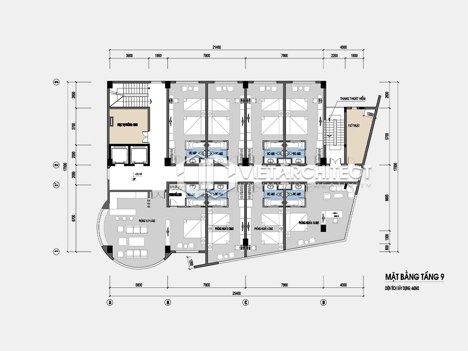
Thiết kế tòa nhà văn phòng Hoàng Sa mặt bằng tầng 9.
Tầng 9 gồm có 8 phòng nghỉ. Trong đó có 2 phòng nghỉ VIP và 6 phòng nghỉ đôi.

Thiết kế tòa nhà văn phòng Hoàng Sa mặt bằng tầng 10.
Tầng 10 của công trình có nhà hàng, buffe có diện tích 173m2. Nhà hàng được bố trí với view nhìn đẹp, có thể ngắm trọn vẹn thành phố. Mặt trong công trình là phòng hội thảo có diện tích 125m2.
Với chiều cao 10 tầng và 1 tầng trệt, công trình có đa dạng công năng từ mini maket cho đến nhà hàng lớn, từ phòng làm việc cho đến phòng nghỉ ngơi, phòng hội thảo. Nhiều công năng giúp khai thác tối đa giá trị của công trình.
Phối cảnh cho phần ngoại thất dự án thiết kế tòa nhà văn phòng Hoàng Sa, các kiến trúc sư của VietArchitect đã thiết kế 3 phương án.

Phương án phối cảnh thứ nhất sử dụng màu sắc chủ đạo là màu trắng cho cả phần khối đế và phần trên công trình.

Phương án phối cảnh thứ hai sử dụng màu vàng nâu ở phần khối đế. Phần trên công trình có thêm điểm nhấn với đường vát cắt chéo trẻ trung.

Phương án phối cảnh thứ 3 sử dụng màu xám ở phần khối đế công trình. Nơi giao cắt giữa mặt tiền và mặt bên công trình sử dụng vách nhôm kính lớn tạo thêm điểm nhấn cho công trình.
Các bạn nghĩ sao về 3 phương án phối cảnh này, đừng quên để lại ý kiến của mình bên dưới phần bình luận.
Mọi thắc mắc về thiết kế, thi công công trình các bạn có thể kết nối trực tiếp với VietArchitect.