Dự án thiết kế tòa nhà văn phòng Phà rừng building tại Hải Phòng được thực hiện bởi VietArchitect. Công trình có chiều cao 13 tầng + 1 tầng hầm. Tổng mức đầu tư là 130 tỷ đồng.
Thiết kế tòa nhà văn phòng hiện đại là xu hướng không thể thay thế trong các công trình hiện nay. Đây là sự lựa chọn yêu thích của nhiều chủ đầu tư bởi sự hợp thời, trẻ trung, hợp thẩm mỹ.
Công trình Phà rừng building là một trong các dự án thiết kế tòa nhà văn phòng theo phong cách hiện đại được thực hiện bởi các kiến trúc sư của VietArchitect.
Đối với thiết kế tòa nhà văn phòng, đầu tiên các kiến trúc sư phải đáp ứng những yêu cầu cơ bản của một dự án tòa nhà văn phòng.
Công trình được xây dựng với mục đích kết hợp giữa làm trụ sở công ty và văn phòng cho thuê. Lưu ý điểm này, các kiến trúc sư của VietArchitect đã thiết kế hai sảnh vào công ty,
Công trình có chiều cao 13 tầng và 1 tầng hầm. Mặt bằng công năng của từng tầng được các kiến trúc sư của VietArchitect bố trí cụ thể như sau.

Thiết kế tòa nhà văn phòng Phà rừng mặt bằng tầng hầm.
Diện tích chính ở tầng hầm là khu vực để xe đáp ứng yêu cầu sử dụng cơ bản của nhân viên trong tòa nhà.
Tầng hầm còn có một số khu vực phụ khác là phòng kỹ thuật, phòng máy phát điện, phòng trực tầng hầm, nhà vệ sinh.

Thiết kế tòa nhà văn phòng Phà rừng mặt bằng tầng 1.
Với mục đích làm tòa nhà văn phòng của công ty và văn phòng cho thuê, công trình được bố trí với 2 sảnh vào. Lối vào chính dẫn vào sảnh chính văn phòng tổng công ty. Đại sảnh lớn, sáng sủa mang đến sự chuyên nghiệp ngay từ khi bước vào.
Sảnh phụ khối văn phòng cho thuê nhỏ hơn, được bố trí ở mặt đối diện của tòa nhà. Gần mỗi sảnh đều có lối vào riêng.
Việc sắp xếp này đảm bảo giao thông công trình thuận lợi, phân luồng rõ ràng.
Các phòng ban chính ở mặt bằng tầng 1 gồm có: Phòng văn thư, phòng làm việc, phòng an ninh, phòng trực, nhà vệ sinh, nhà kho, và phòng kỹ thuật.

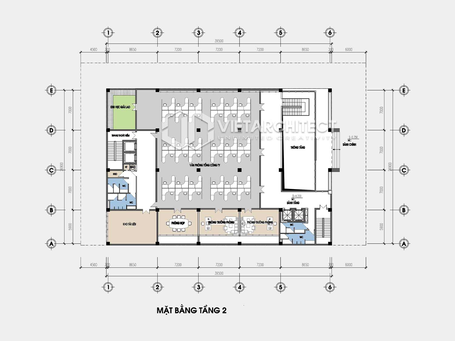
Thiết kế tòa nhà văn phòng Phà rừng mặt bằng tầng 2.
Mặt bằng tầng 2 của công trình gồm cso văn phòng tổng công ty, phòng họp, phòng trưởng phòng và kho tài liệu. Tầng hai có khu vực giải lao tương đối rộng. Tại đây, có thể trồng các loại cây xanh hoặc bố trí bàn trà để nhân viên có thể nghỉ ngơi.

Thiết kế tòa nhà văn phòng Phà rừng mặt bằng tầng 3,4.
Diện tích chính ở tầng 3,4 là văn phòng tổng công ty. Các phòng làm việc nhỏ hơn gồm có phòng nghiệp vụ, phòng trưởng phòng, kho tài liệu. Phòng họp được bố trí tại tầng 3,4 của công trình tương đối lớn.

Thiết kế tòa nhà văn phòng Phà rừng mặt bằng tầng 5.
Tầng 5 công trình là khu vực làm việc của các cán bộ cấp cao và tiếp đón những vị khách đặc biệt quan trong. Bên cạnh phòng làm việc của các tổng giám đốc, phó tổng giám đốc. Thì tại tầng 5 công trình còn có phòng nghỉ, phòng ăn và phòng tiếp khách.
2 phòng họp được bố trí chính giữa mặt bằng tầng 5 là nơi tổ chức những buổi họp quan trọng, quyết định toàn bộ hoạt động của công ty. Đây cũng là nơi rất thích hợp để trao đổi với khách hàng.

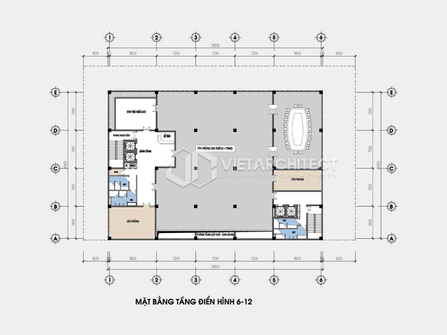
Thiết kế tòa nhà văn phòng Phà rừng tầng 6-12.
Từ tầng 6 đến tầng 12 của công trình là văn phòng cho thuê. Diện tích văn phòng cho thuê ở mỗi tầng lên tới 775m2. Bên cạnh đó là một số phòng khác như: phòng họp, văn phòng làm việc, nhà vệ sinh, nhà kho, khu vực giải lao.
Ngoài ra, mỗi tầng còn có khu vực sảnh lễ tân tiếp đón riêng thể hiện sự chuyên nghiệp.
Văn phòng cho thuê này rất phù hợp với những công ty có quy mô tương đối lớn.

Thiết kế tòa nhà văn phòng Phà rừng mặt bằng tầng 13.
Tầng 13 và cũng là tầng cao nhất của công trình gồm có Phòng hội trường có diện tích 278m2 và khu vực bar cafe.
Thực hiện thiết kế tòa nhà văn phòng các kiến trúc sư của VietArchitect đã thiết kế công trình theo phong cách hiện đại. Đây cũng là yêu cầu của chủ đầu tư.

Tòa nhà văn phòng có sự kết hợp giữa đường cong mềm mại và khối vuông vững chắc, khỏe khoắn.

Khác với phương án 1, phương án phối cảnh thứ hai mang đến sự cứng rắn và vững chãi cho công trình. Ngoại thất công trình sử dụng những hình khối cơ bản khỏe khoắn, vuông vức.
Phương án cuối cùng được chủ đầu tư lựa chọn là phương án phối cảnh thứ nhất.
Còn các bạn, phương án phối cảnh nào làm các bạn thích thú hơn. Các bạn nghĩ sao về bố trí mặt bằng công năng và phối cảnh dự án, đừng quên để lại ý kiến của mình bên dưới phần bình luận.
Liên hệ ngay với các kiến trúc sư của VietArchitect để được nhận tư vấn và báo giá trực tiếp.