Công trình trường đại học không chỉ đảm bảo mục đích phục vụ giáo dục. Mà quan trọng hơn thiết kế trường đại học còn phải thể hiện đặc trưng từ chuyên ngành đào tạo, phương châm giáo dục của trường.
Trường đại học là công trình phục vụ phục đích giáo dục. Mỗi trường lại có những chuyên ngành đào tạo, những tôn chỉ, mục đích hoạt động khác nhau. Chính vì thế, thiết kế trường đại học cũng có vai trò vô cùng quan trọng là thể hiện được đặc trưng của từng trường. Các kiến trúc sư của VietArchitect đã thực hiện dự án thiết kế Trường đại học Khoa học và Công nghệ Hà Nội dựa trên các tiêu chí này.
Chủ đầu tư đã đặt ra đề bài thiết kế cụ thể với các kiến trúc sư của VietArchitect như sau.
- Thiết kế trường đại học trước hết phải đảm bảo công năng của dự án. Trường phải có đầy đủ các khu vực như: phòng học, hội trường, canteen, văn phòng khoa...
- Công trình phải đảm bảo có không gian xanh xung quanh mang đến sự thoáng mát cho dự án.
- Chủ đầu tư yêu cầu thiết kế ngoại thất công trình đơn giản. Tuy nhiên vẫn phải thể hiện được đặc trưng chuyên ngành đào tạo của trường.
Công trình có chiều cao 6 tầng. Công năng chính của dự án là phòng học và phòng làm việc của cán bộ, giảng viên trong trường.

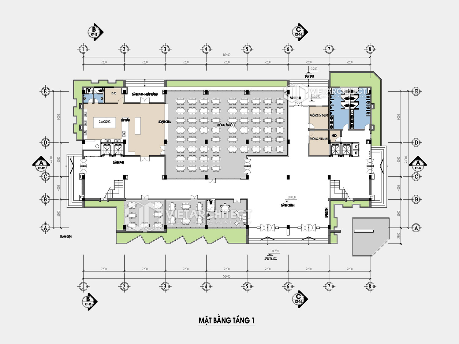
Mặt bằng tầng 1 thiết kế trường đại học.
Tầng 1 trường đại học là khu vực phòng ăn với 1 phòng ăn lớn và 2 phòng ăn nhỏ. Khu vực bếp nấu, sảnh nhập hàng được bố trí ngay tại phòng ăn lớn. Bên cạnh đó, tầng 1 còn có các khu vực phụ khác như nhà vệ sinh, nhà kho, phòng kỹ thuật, phòng an ninh.

Thiết kế trường đại học mặt bằng tầng 2.
Tầng 2 của công trình là khu vực làm việc của các cán bộ. giảng viên trong trường. Tầng 2 có hai khu vực chính là khu vực làm việc và khu vực nghỉ ngơi. Trong đó, khu vực làm việc gồm có phòng làm việc của hiệu trưởng, phó hiệu trưởng, phòng làm việc của các phòng ban và phòng tiếp khách, phòng họp.

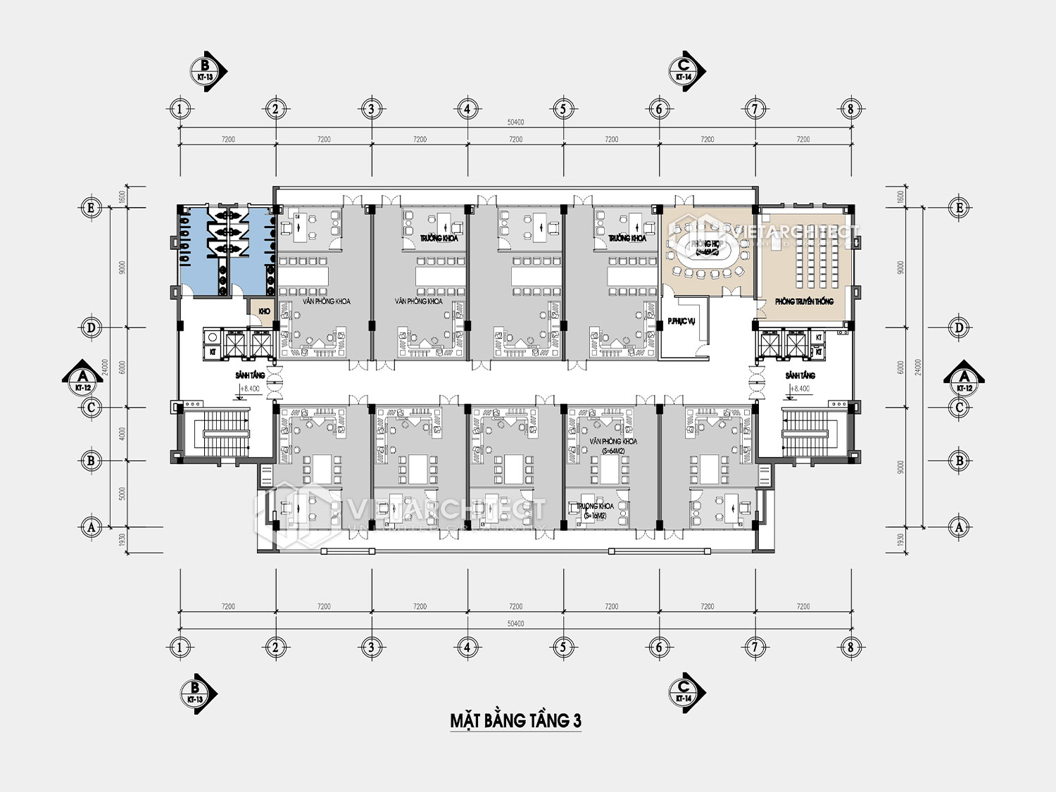
Thiết kế trường đại học mặt bằng tầng 3.
Tầng 3 là khu vực làm việc của 9 văn phòng khoa của trường.

Thiết kế trường đại học mặt bằng tầng 4,5,6.
Mặt bằng tầng 4,5,6 được bố trí tương tự nhau. Mỗi tầng có 3 phòng học lớn và 2 phòng seminar. Trong đó, phòng học lớn nhất có diện tích 194m2. Phòng seminar nhỏ nhất có diện tích 65m2.

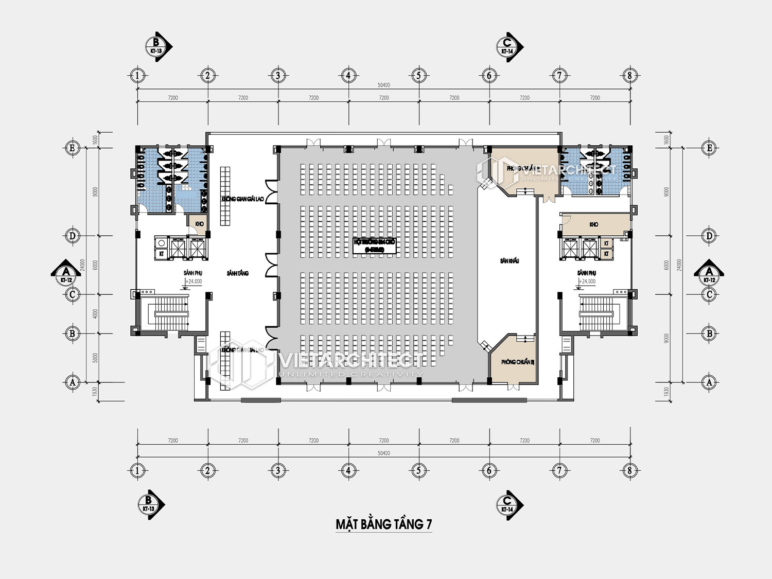
Thiết kế trường đại học mặt bằng tầng 7.
Tầng 7 của công trình là khu vực hội trường lớn có diện tích lên tới trên 500m2. Hội trường là khu vực không thể thiếu ở mỗi trường đại học. Đây là khu vực tổ chức các sự kiện, hội thảo, hoạt động ngoại khóa cho sinh viên trong trường.

Thiết kế trường đại học mặt bằng tầng áp mái.
Thiết kế trường đại học Khoa học và Công nghệ Hà Nội, các kiến trúc sư của VietArchitect đã lựa chọn phương án thiết kế hiện đại cho công trình. Với hai phương án phối cảnh, hai màu sắc chủ đạo và hai hình khối khác nhau, mỗi phương án mang đến những cảm nhận khác nhau.
Ở phương án phối cảnh thứ nhất. màu sắc chủ đạo được lựa chọn cho ngoại thất công trình là màu xanh dương. Kết hợp với đá lát màu vàng nhạt (chủ đầu tư cũng có thể lựa chọn sơn giả đá) ở phần khối đế công trình. Những màu sắc này thể hiện rất rõ yếu tố kỹ thuật, phù hợp với chuyên ngành đào tạo của trường
Hai khối của công trình được tách biệt một các rõ ràng.

Phương án thứ hai sử dụng màu sắc chủ đạo là màu vàng nhạt kết hợp với màu sắc ở phần khối để công trình là màu xanh rêu. Hai khối của công trình đồng nhất với nhau, không có sự khác biệt về hình khối.
Mặt tiền công trình bao phủ phần lớn bằng vật liệu kính tăng thêm sự sang trong cho công trình.

Ở cả hai phương án, các kiến trúc sư của VietArchitect đều lựa chọn vật liệu kính cho phần cửa công trình.
Phương án thiết kế trường đại học cuối cùng được chủ đầu tư lựa chọn là phương án thứ nhất. Còn các bạn, phương án thiết kế nào làm các bạn ấn tượng hơn. Đừng quên để lại ý kiến của mình bên dưới phần bình luận.
Mọi thắc mắc về thiết kế, thi công công trình các bạn có thể kết nối trực tiếp với các kiến trúc sư của chúng tôi.