Khách sạn vườn treo sapa

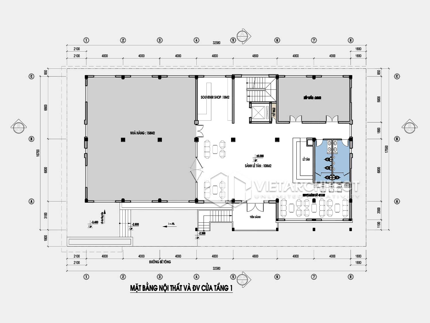
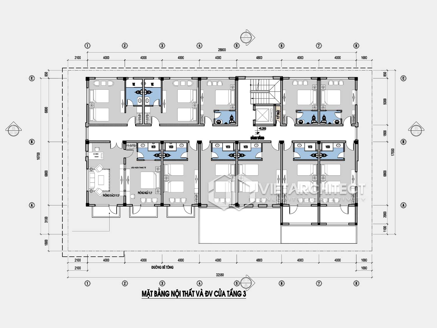
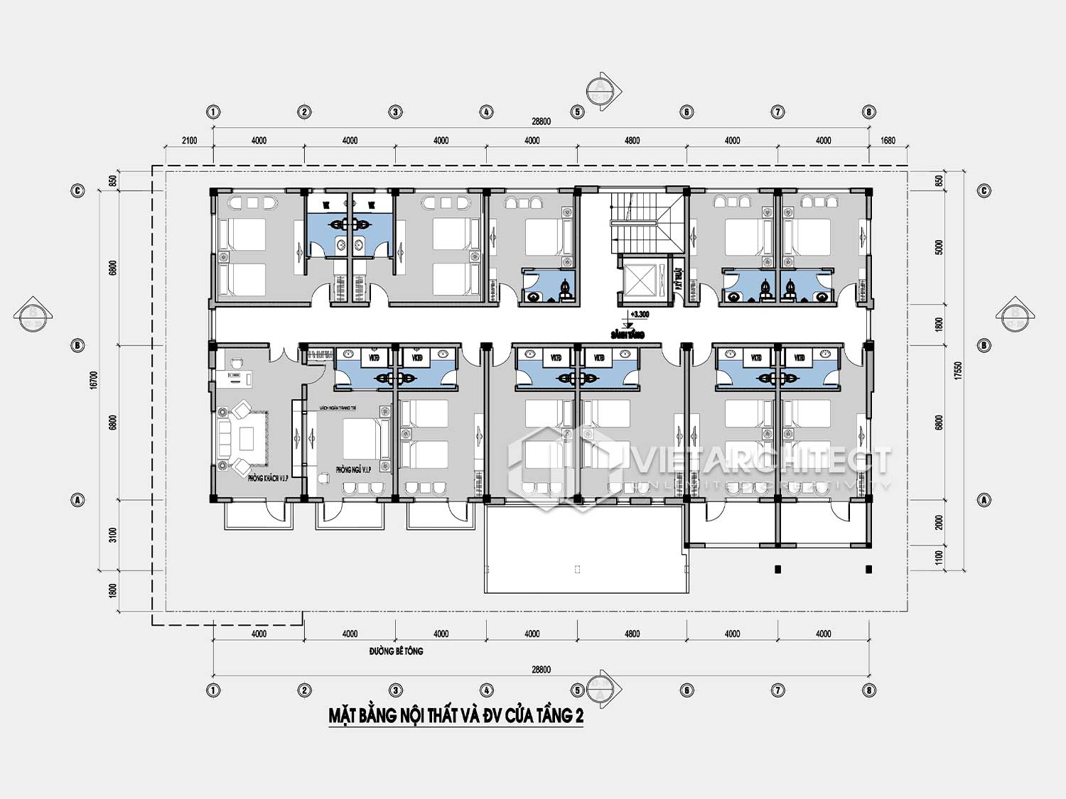
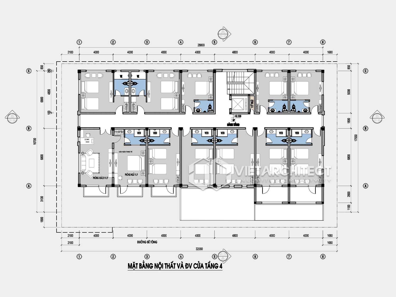
Thông tin dự án

  • Chủ đầu tư: Công ty Cổ phần Làng Sapa.
  • Tên công trình: Khách sạn vườn treo Sapa. 
  • Diện tích xây dựng: 435m2.
  • Tổng diện tích sàn: 2 200m2
  • Số tầng cao: 4 tầng.
  • Mật độ xây dựng: 50%
  • Tổng mức đầu tư: 18 tỷ đồng

Mô tả sản phẩm


Mọi thắc mắc về thiết kế, thi công công trình và nhận báo giá trực tiếp các bạn có thể liên hệ trực tiếp với chúng tôi. 

  • WebsiteVietarchitect.vn
  • FacebookKiến trúc VietArch
  • Gmail: Vietarch.company@gmail.com.
  • Hotline: 0931900379.
  • Địa chỉ: Số 41+43, ngõ 119, phố Hồ Đắc Di, Đống Đa, Hà Nội.

Sản phẩm liên quan

Thong ke
093 1900 379