Khách sạn Âu Lạc

Thông tin dự án

  • Dự án: Thiết kế khách sạn Âu Lạc 
  • Chủ đầu tư: Công ty TNHH Dịch vụ Thương mại Khách sạn Âu Lạc. 
  • Địa chỉ: Khu dân cư QH Đông Hùng Thắng, phường Bãi Cháy, thành phố Hạ Long, tỉnh Quảng Ninh. 
  • Diện tích xây dựng: 320 m2
  • Tổng diện tích sàn: 4 900 m2
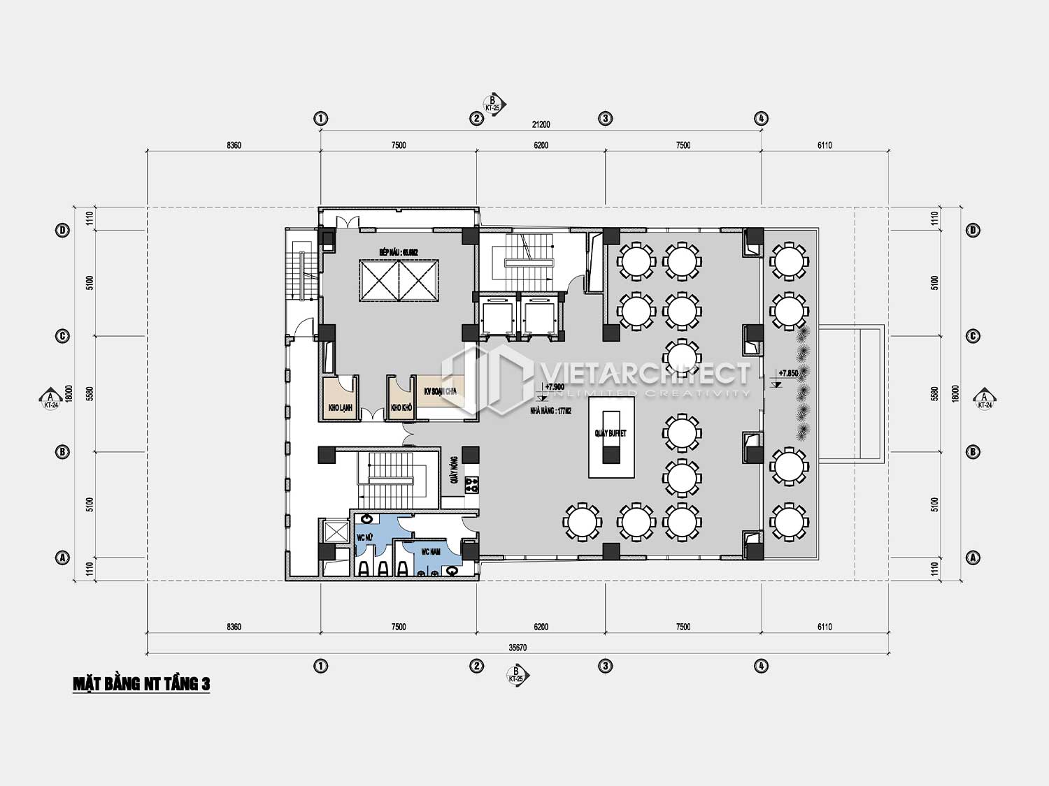
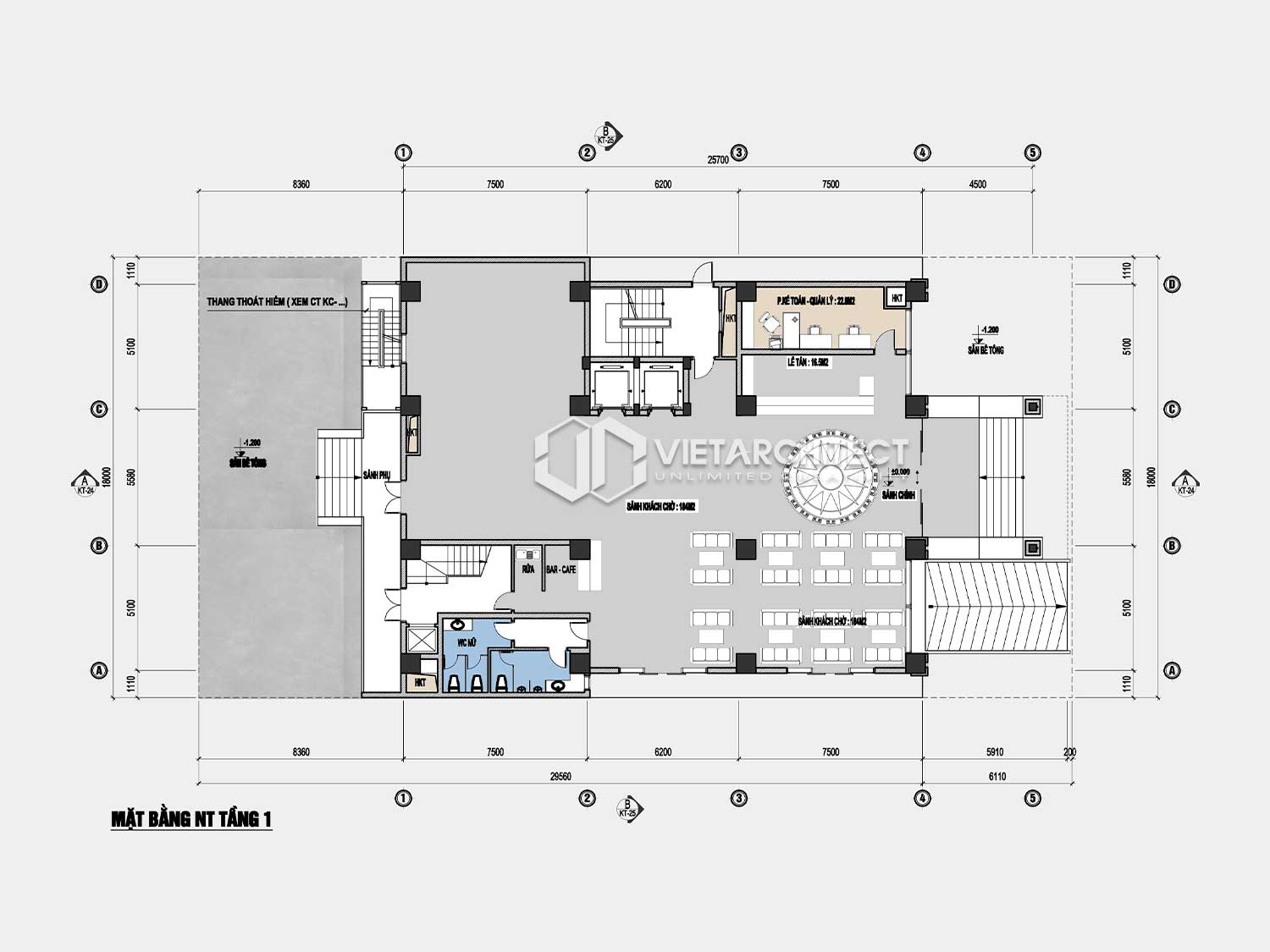
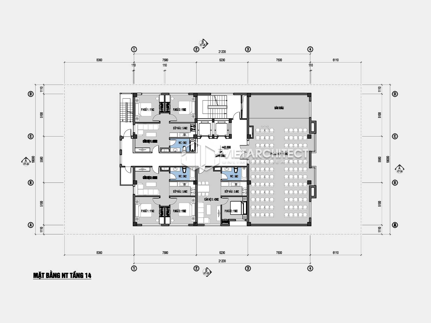
  • Số tầng: 15 tầng
  • Mật độ xây dựng: 80%
  • Tổng mức đầu tư: 52 tỷ đồng.

Mô tả sản phẩm


Mọi thắc mắc về thiết kế, thi công công trình và nhận báo giá trực tiếp các bạn có thể liên hệ trực tiếp với chúng tôi. 

  • WebsiteVietarchitect.vn
  • FacebookKiến trúc VietArch
  • Gmail: Vietarch.company@gmail.com.
  • Hotline: 0931900379.
  • Địa chỉ: Số 41+43, ngõ 119, phố Hồ Đắc Di, Đống Đa, Hà Nội.

Sản phẩm liên quan

Thong ke
093 1900 379