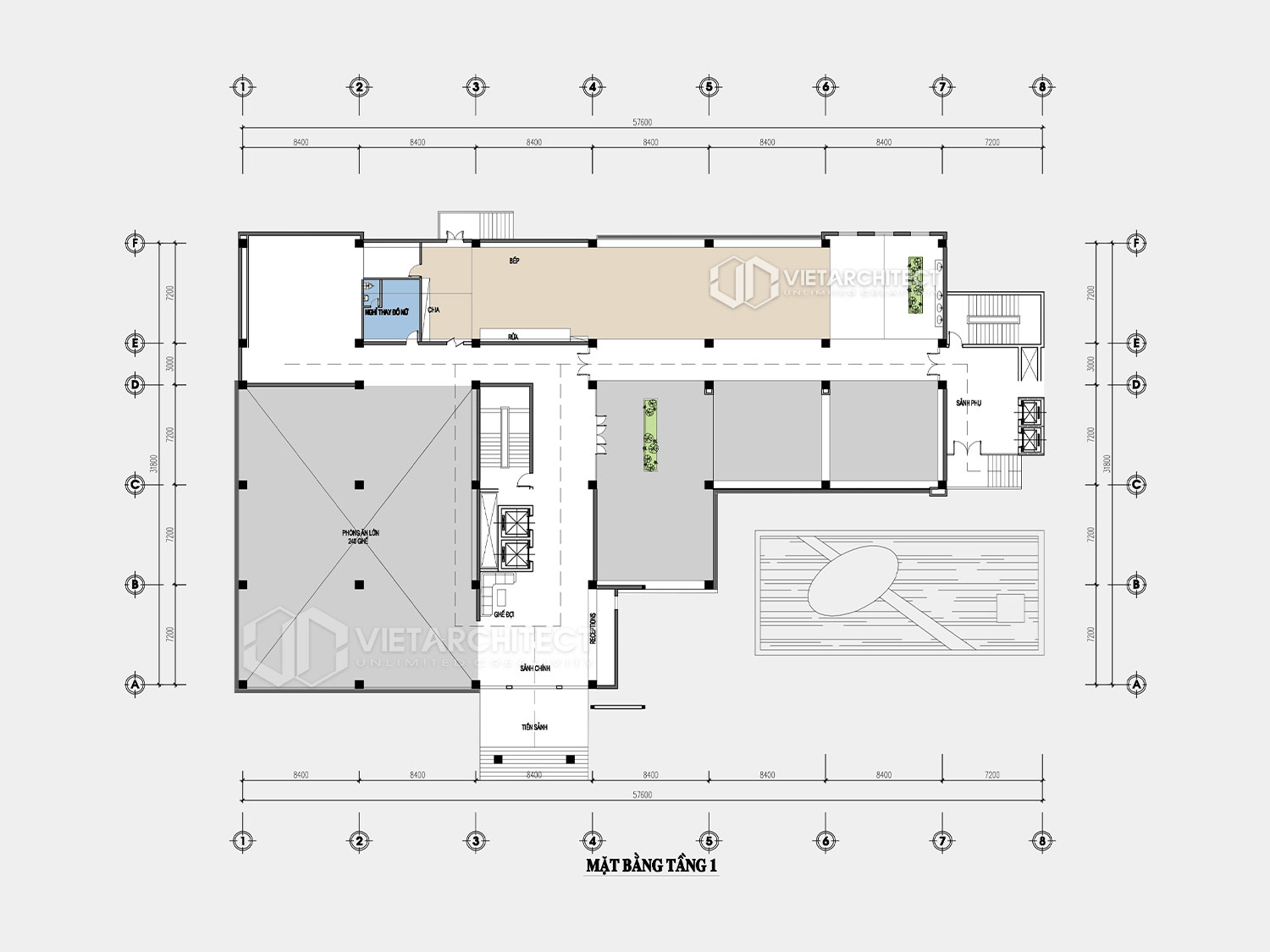
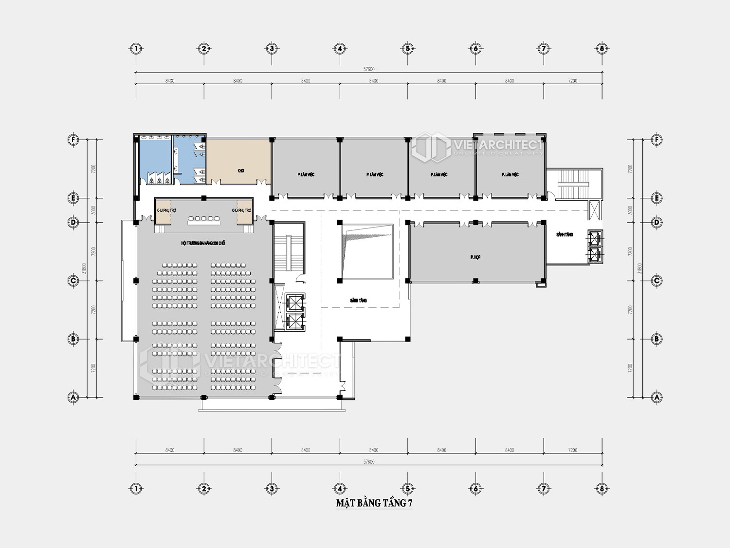
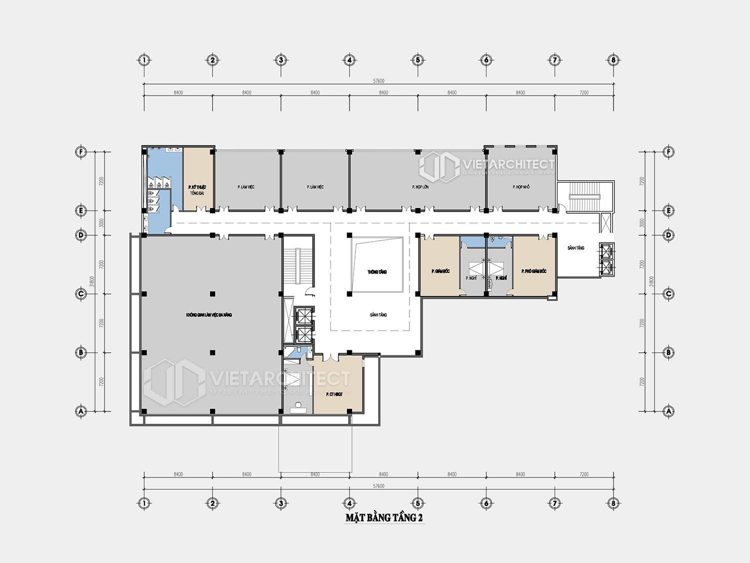
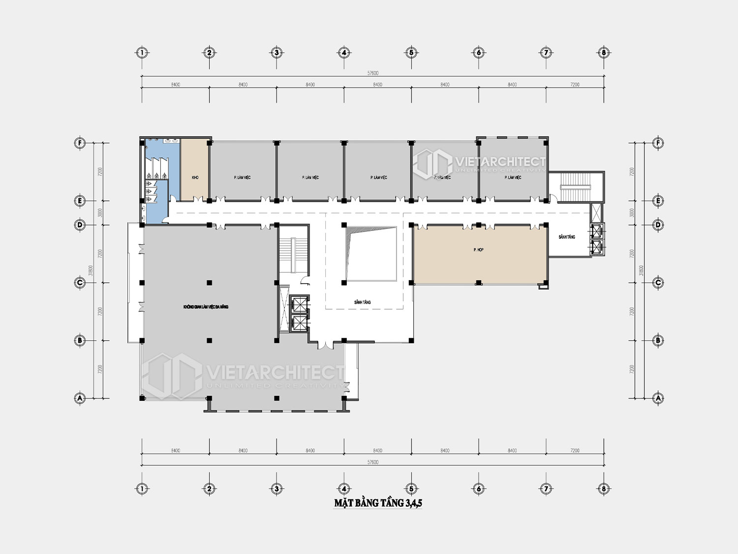
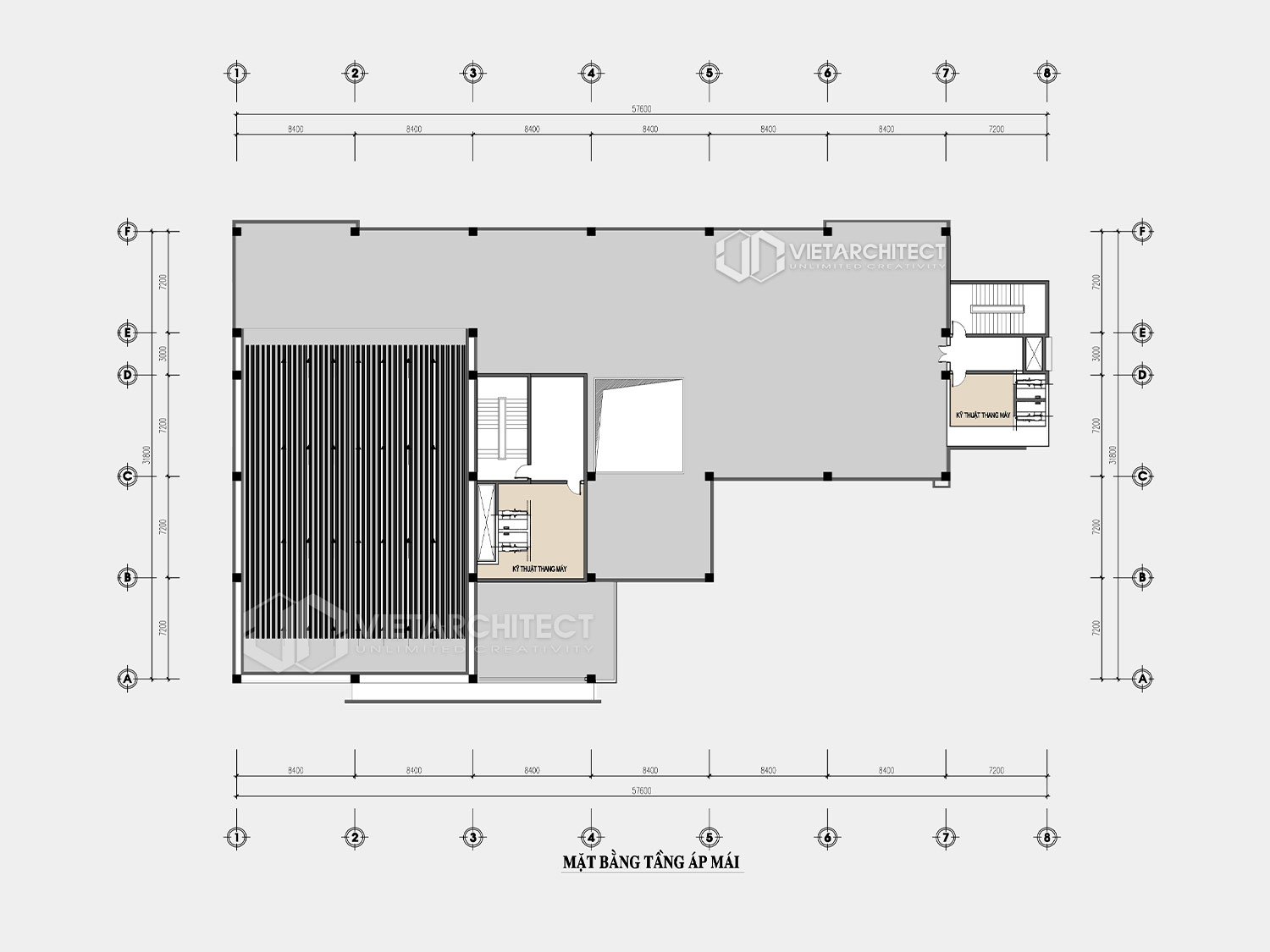
Nhà điều hành Công ty CP Điện Nam Triệu

Thông tin dự án

  • Chủ đầu tư: Tổng Công ty Công nghiệp Tàu thủy Nam Triệu. 
  • Dự án: Đầu tư xây dựng nhà máy sản xuất dây cáp điện và thiết bị điện. 
  • Hạng mục: Nhà điều hành sản xuất. 
  • Địa điểm: Xã Đại Thắng, huyện Tiên Lãng, Hải Phòng
  • Diện tích xây dựng: 1 505m2.

Mô tả sản phẩm


Mọi thắc mắc về thiết kế, thi công công trình và nhận báo giá trực tiếp các bạn có thể liên hệ trực tiếp với chúng tôi. 

  • WebsiteVietarchitect.vn
  • FacebookKiến trúc VietArch
  • Gmail: Vietarch.company@gmail.com.
  • Hotline: 0931900379.
  • Địa chỉ: Số 41+43, ngõ 119, phố Hồ Đắc Di, Đống Đa, Hà Nội.

Sản phẩm liên quan

Thong ke
093 1900 379