Phà rừng building

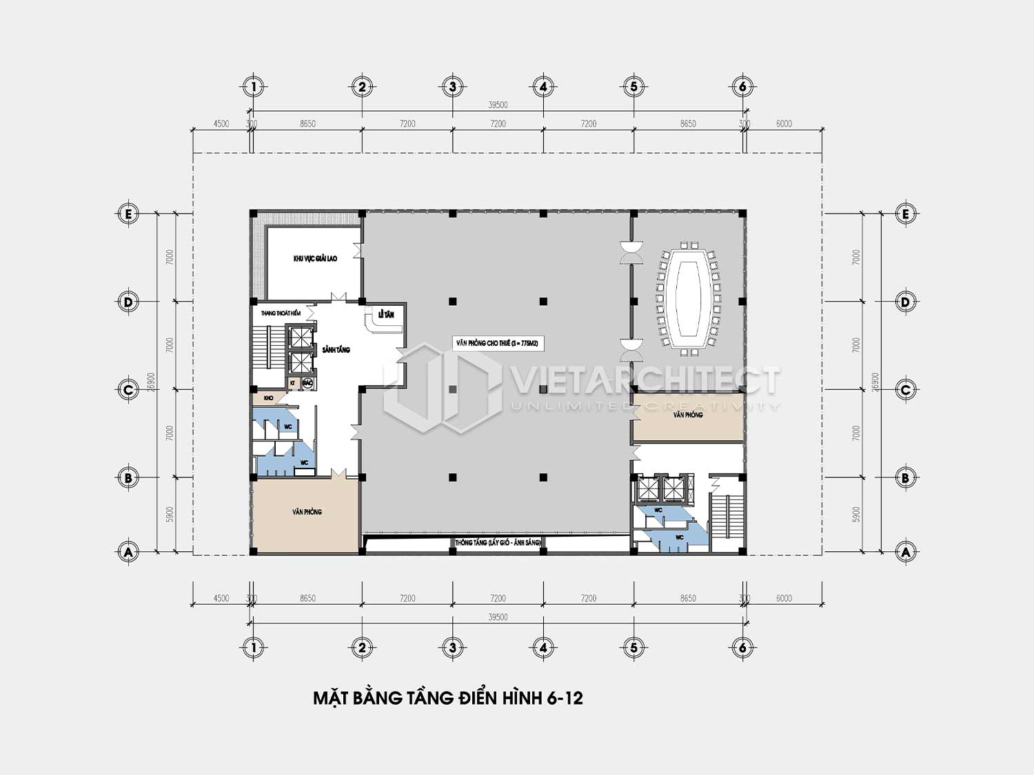
Thông tin dự án

  • Địa chỉ xây dựng: Đường ngã 5, sân bay Cát Bi, Ngô Quyền, Hải Phòng. 
  • Tổng diện tích khu đất: 1 086,5m2.
  • Diện tích xây dựng: 1 600m2.
  • Tổng diện tích sàn: 20 800m2.
  • Số tầng cao: 13 tầng + 1 tầng hầm
  • Tổng mức đầu tư: 130 tỷ đồng.

Mô tả sản phẩm


Mọi thắc mắc về thiết kế, thi công công trình và nhận báo giá trực tiếp các bạn có thể liên hệ trực tiếp với chúng tôi. 

  • WebsiteVietarchitect.vn
  • FacebookKiến trúc VietArch
  • Gmail: Vietarch.company@gmail.com.
  • Hotline: 0931900379.
  • Địa chỉ: Số 41+43, ngõ 119, phố Hồ Đắc Di, Đống Đa, Hà Nội.

Sản phẩm liên quan

Thong ke
093 1900 379