Dự án thiết kế khách sạn Âu Lạc với chiều cao 15 tầng được thực hiện bởi VietArchitect. Công trình này có gì đặc biệt, mời các bạn cùng theo dõi ngay trong bài viết dưới đây.
Dự án thiết kế khách sạn Âu Lạc với chiều cao 15 tầng được thực hiện bởi VietArchitect. Công trình này có gì đặc biệt, mời các bạn cùng theo dõi ngay trong bài viết dưới đây.
Dự án thiết kế khách sạn Âu Lạc có chiều cao 15 tầng. Mặt bằng của từng tầng được bố trí cụ thể như sau.

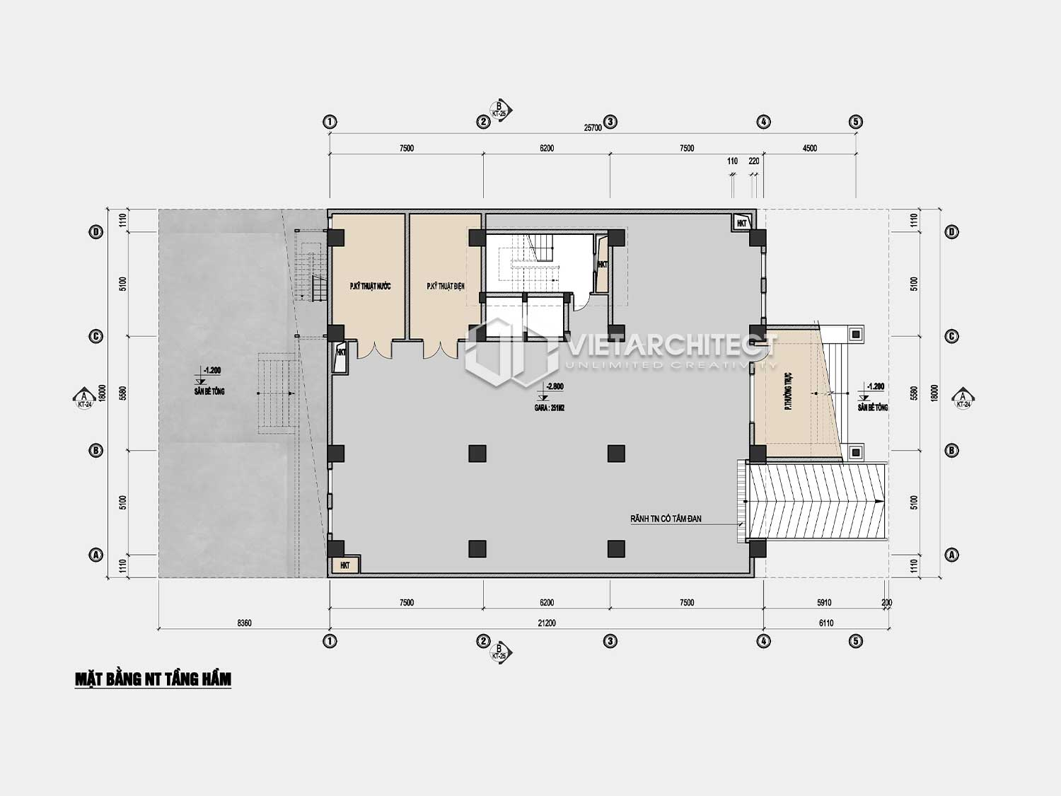
Thiết kế khách sạn Âu Lạc mặt bằng tầng hầm.
Tầng hầm công trình gồm có gara để xe có diện tích 251m2. Khu vực phụ gồm có phòng kỹ thuật nước, phòng kỹ thuật điện và phòng thường trực.

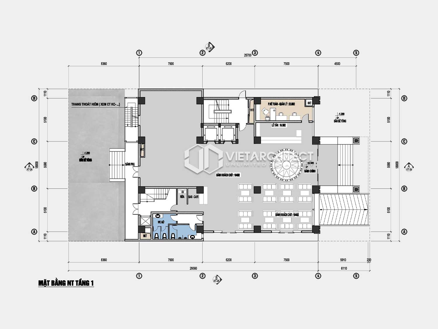
Thiết kế khách sạn Âu Lạc mặt bằng tầng 1.
Tầng 1 công trình có khu vực sảnh chờ rất lớn, có diện tích lên tới 184m2. Tại đây có cafe, đồ uống phục vụ khách hàng. Cạnh khu vực lễ tân là phòng kế toán - quản lý có diện tích 22,8m2.

Thiết kế khách sạn Âu Lạc mặt bằng tầng 2.
Tầng 2 công trình là khu vực massage, thư giãn. Từ sảnh tầng 2 đi vào là khu vực lễ tân, sảnh khách chờ. Tiếp đến là phòng thay - gửi đồ. Tiếp đến là phòng xông hơi, bể xục. Cuối cùng là các phòng massage.

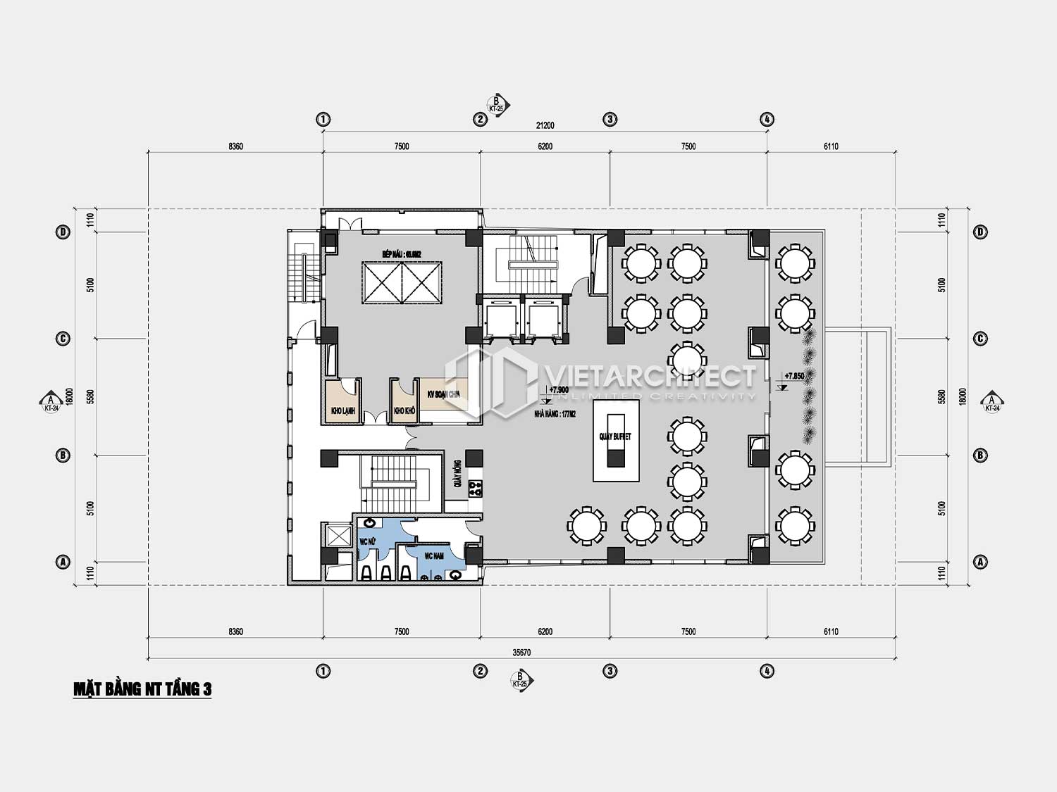
Thiết kế khách sạn Âu Lạc mặt bằng tầng 3.
Tầng 3 công trình là khu vực nhà hàng có diện tích 177m2. Bên cạnh không gian ăn trong phòng, các kiến trúc sư của VietArchitect còn bố trí thêm các bàn ăn ở bên ngoài ban công. Khách hàng có thể vừa dùng bữa, vừa ngắm nhìn thành phố.
Cạnh phòng ăn là bếp nấu có diện tích 65,6m2. Bếp nấu ngay cạnh nhà hàng đảm bảo đồ ăn có thể phục vụ nhanh chóng.

Thiết kế khách sạn Âu Lạc mặt bằng tầng 4.
Mặt bằng tầng 4 của công trình là phòng nghỉ. Tầng 4 có 2 phòng nghỉ VIP, 2 phòng đôi và 3 phòng nghỉ đơn.

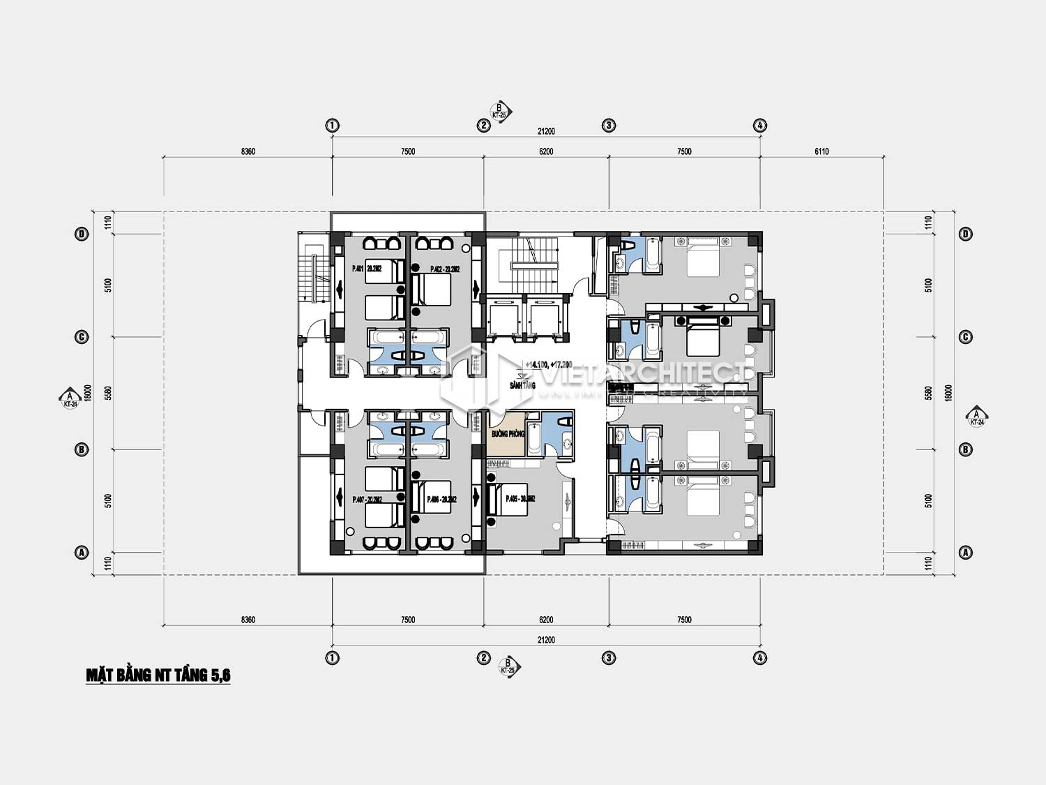
Thiết kế khách sạn sạn Âu Lạc mặt bằng tầng 5,6.
Mặt bằng tầng 5,6 của công trình được bố trí giống nhau. Mỗi tầng có 6 phòng nghỉ 1 giường và 2 phòng nghỉ 2 giường.

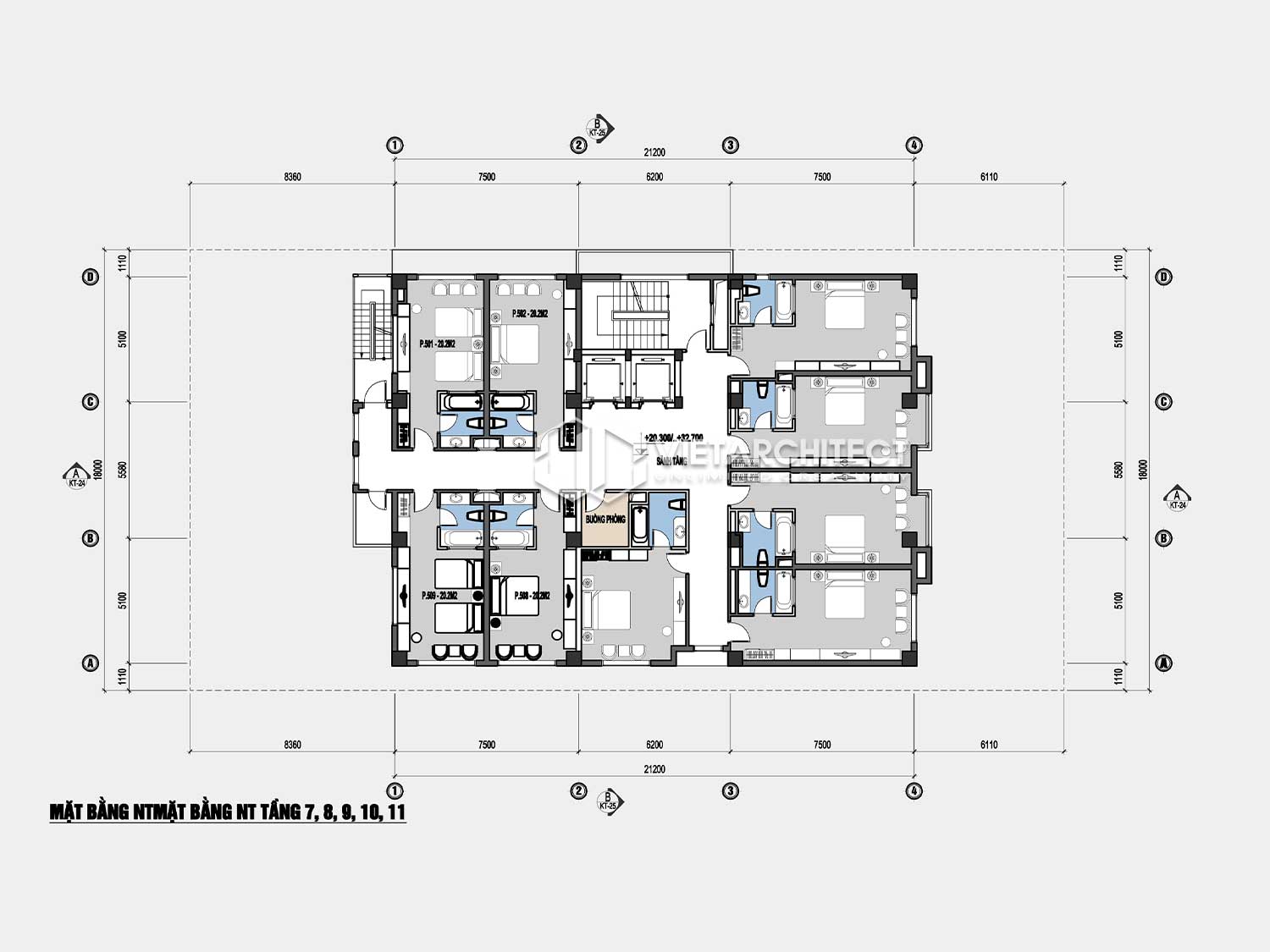
Thiết kế khách sạn Âu Lạc mặt bằng tầng 7 đến tầng 11.
Mặt bằng tầng 7, 8, 9, 10, 11 của công trình được bố trí giống với 2 tầng bên dưới.

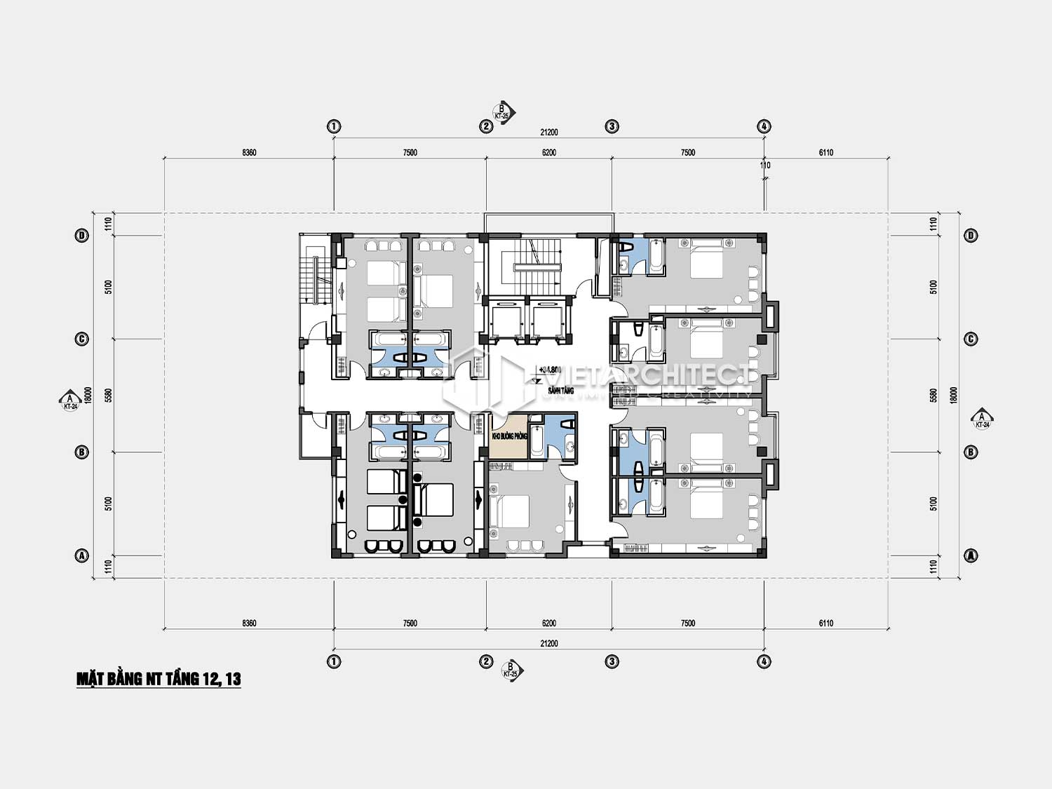
Thiết kế khách sạn Âu Lạc mặt bằng tầng 12,13.

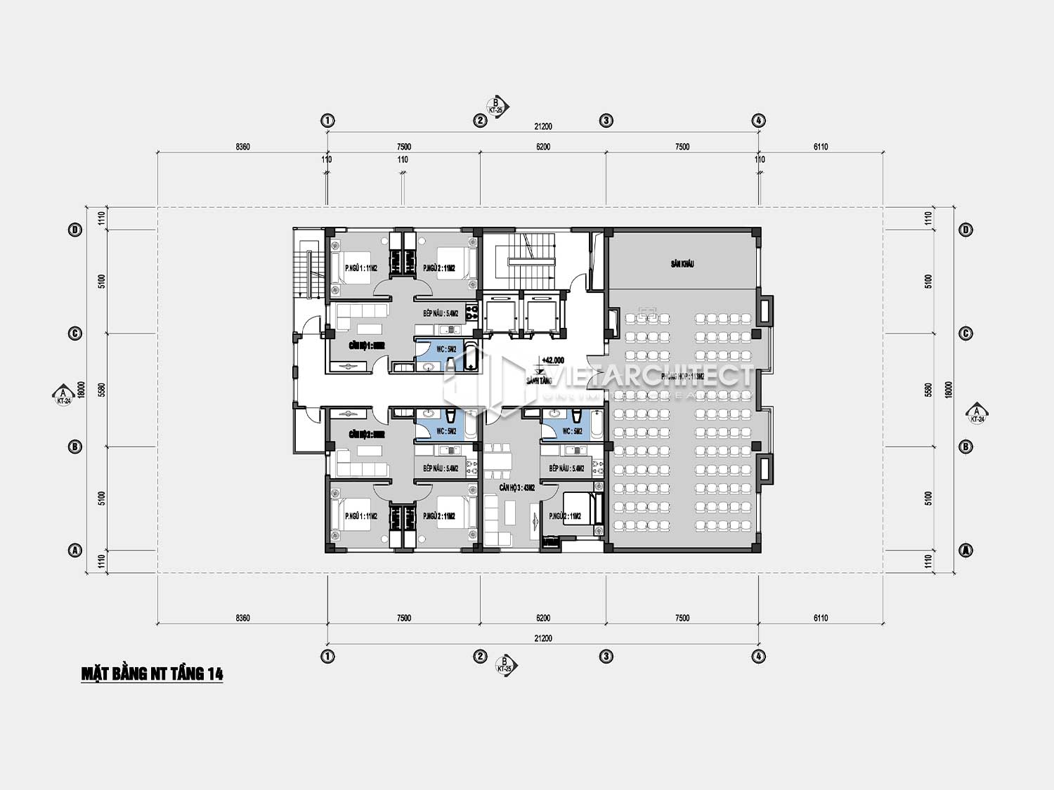
Thiết kế khách sạn Âu Lạc mặt bằng tầng 14.
Mặt bằng tầng 14 của công trình gồm có 1 phòng họp có diện tích 113m2 và 3 phòng nghỉ dạng căn hộ. Trong có có 2 căn hộ có 2 phòng ngủ và 1 căn hộ có 1 phòng ngủ.
Loại phòng căn hộ này có thể là nơi nghỉ ngơi của chủ đầu tư. Phục vụ những khách hàng nghỉ ngơi gia đình. Hoặc những người mong muốn nghỉ ngơi trong một căn hộ có đầy đủ bếp nấu, phòng khách, phòng ăn.

Thiết kế khách sạn Âu Lạc mặt bằng tầng áp mái.
Mặt bằng tầng áp mái của công trình là sân thượng và khu vực kỹ thuật.

Thiết kế khách sạn Âu Lạc mặt bằng tầng mái.

Phần ngoại thất công trình thể hiện sự vững chãi với các trụ cột chắc chắn và hình khối khỏe mạnh.

Phần khối đế là điểm nhấn nối bật của công trình với phần sảnh ra vào ấn tượng. Tại sảnh vào sử dụng vật liệu chủ yếu là kính tạo thêm sự nổi bật và thu hút.
Các bạn nghĩ sao về công trình này. Đừng quên để lại ý kiến của mình bên dưới phần bình luận.
Kết nối ngay với chúng tôi để được nhận tư vấn trực tiếp.